Woning Winterkoning 13 Soest

Winterkoning 13, 3766WB Soest

Ontvang updates voor Klein Engendaal Noord

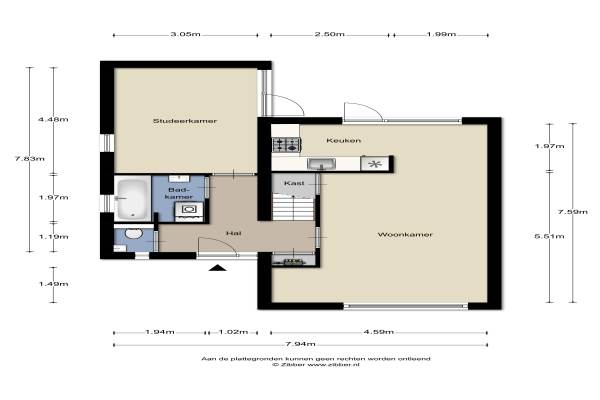
Het adres van deze woning uit 1995 is Winterkoning 13 te Soest. Het pand heeft een oppervlakte van 95m² en een perceeloppervlakte van 223m² en heeft 4 kamers kamers waarvan 2 slaapkamers. De geschatte waarde van deze woning is € 375.000.

Bekijk alle woningen in Klein Engendaal Noord

Gegevens van Eengezinswoning, hoekwoning

Bouwjaar
1995
Geschatte waarde
€ 375.000
Oppervlakte
95 m2
Inhoud
375 m3
Aantal kamers
4 kamers
Slaapkamers
2
Badkamers
2 badkamers en 1 apart toilet
Soort bouw
Bestaande bouw
Eigendomssituatie
Volle eigendom
Ligging
Aan rustige weg en in woonwijk
Tuin
Achtertuin en voortuin
Achtertuin
99 m² (11m diep en 9m breed)

Voorzieningen in de buurt

Boodschappen0,9 km
Grote supermarkt0,9 km
Cafetaria0,4 km
Restaurant0,6 km
Huisarts0,6 km
Ziekenhuis6,6 km
Kinderdagverblijf1,0 km
BSO0,9 km
Alle voorzieningen in Klein Engendaal Noord

Binnenkijken bij Winterkoning 13 te Soest

Meer meldingen in deze omgeving

Binnenkijken bij
Dinsdag 11-11-2025
Specht 12, 3766WP Soest

Nieuw bedrijf
Oktober 2025
Winterkoning 64, 3766WE Soest

112 melding
Dinsdag 7-10-2025 om 10:06
Winterkoning, Soest

Binnenkijken bij
Vrijdag 19-9-2025
Goudvink 30, 3766WL Soest

Binnenkijken bij
Vrijdag 19-9-2025
Goudvink 34, 3766WL Soest

Nieuw bedrijf
Juni 2025
Winterkoning 10, 3766WD Soest

Binnenkijken bij
Zondag 15-6-2025
Goudvink 37, 3766WJ Soest

Nieuw bedrijf
Juni 2025
Winterkoning 110, 3766WE Soest

Direct een e-mail ontvangen bij nieuwe meldingen in deze regio?

Meld je dan GRATIS aan voor de Oozo Alert service voor Klein Engendaal Noord

Instellen

Meer nieuws in Klein Engendaal Noord

Weten hoe eenvoudig het is om af te vallen? Zonder pillen en smeersels en zonder je in het zweet te werken!
Kijk op eenvoudig-afvallen.nl

© 2012 - 2025 OOZO.nl - info@oozo.nl - Gegevens verwijderen? | Disclaimer | Privacy statement