Woning Koekoekweg 10 Soest

Koekoekweg 10, 3762VJ Soest

Ontvang updates voor 't Hart

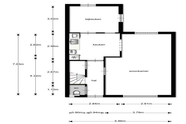
Het adres van deze woning uit 1948 is Koekoekweg 10 te Soest. Het pand heeft een oppervlakte van 100m² en een perceeloppervlakte van 225m² en heeft 5 kamers kamers waarvan 3 slaapkamers. De geschatte waarde van deze woning is € 225.000.

Bekijk alle woningen in 't Hart

Gegevens van Eengezinswoning, tussenwoning

Bouwjaar
1948
Geschatte waarde
€ 225.000
Oppervlakte
100 m2
Inhoud
324 m3
Aantal kamers
5 kamers
Slaapkamers
3
Badkamers
1 badkamer en 1 apart toilet
Soort bouw
Bestaande bouw
Eigendomssituatie
Volle eigendom
Ligging
Aan rustige weg, beschutte ligging en in woonwijk
Tuin
Achtertuin en voortuin
Achtertuin
90 m² (15m diep en 6m breed)

Voorzieningen in de buurt

Boodschappen0,4 km
Grote supermarkt0,6 km
Cafetaria0,5 km
Restaurant0,5 km
Huisarts0,6 km
Ziekenhuis4,2 km
Kinderdagverblijf0,5 km
BSO0,5 km
Alle voorzieningen in 't Hart

Binnenkijken bij Koekoekweg 10 te Soest

Meer meldingen in deze omgeving

Politienieuws
Woensdag 3-12-2025
Meent, Soest

Nieuw bedrijf
December 2025
Schrikslaan 53, 3762TB Soest

Nieuw bedrijf
December 2025
Koninginnelaan 159, 3762DD Soest

Nieuw bedrijf
December 2025
Troelstrastraat 39, 3762TW Soest

Nieuw bedrijf
December 2025
Nieuwstraat 16, 3762TP Soest

Nieuw bedrijf
December 2025
Chalonhof 153, 3762CT Soest

Nieuw bedrijf
December 2025
Mariastraat 1, 3762CW Soest

Nieuw bedrijf
December 2025
Mariastraat 1, 3762CW Soest

Direct een e-mail ontvangen bij nieuwe meldingen in deze regio?

Meld je dan GRATIS aan voor de Oozo Alert service voor 't Hart

Instellen

Meer nieuws in 't Hart

Weten hoe eenvoudig het is om af te vallen? Zonder pillen en smeersels en zonder je in het zweet te werken!
Kijk op eenvoudig-afvallen.nl

© 2012 - 2025 OOZO.nl - info@oozo.nl - Gegevens verwijderen? | Disclaimer | Privacy statement