Woning Prinsenhof 4 Soest

Prinsenhof 4, 3762TB Soest

Ontvang updates voor 't Hart

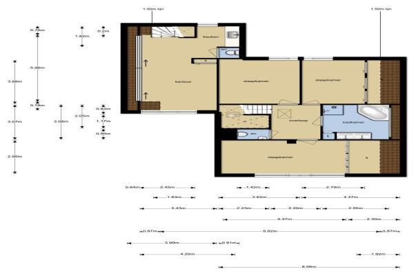
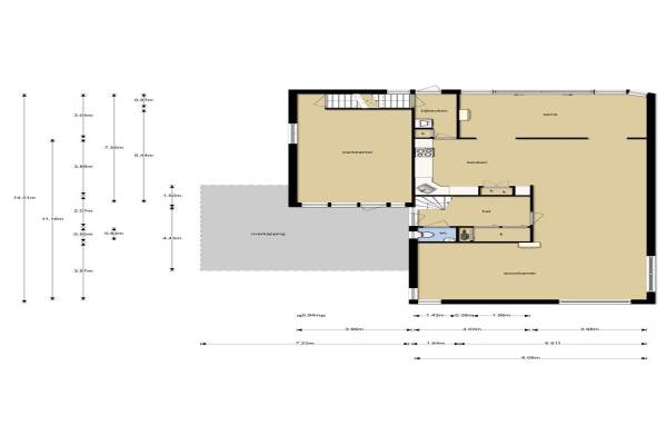
Het adres van deze woning uit 1990 is Prinsenhof 4 te Soest. Het pand heeft een oppervlakte van 250m² en een perceeloppervlakte van 600m² en heeft 7 kamers kamers waarvan 4 slaapkamers. De geschatte waarde van deze woning is € 850.000.

Bekijk alle woningen in 't Hart

Gegevens van Villa, vrijstaande woning

Bouwjaar
1990
Geschatte waarde
€ 850.000
Oppervlakte
250 m2
Inhoud
1025 m3
Aantal kamers
7 kamers
Slaapkamers
4
Badkamers
1 badkamer en 2 aparte toiletten
Soort bouw
Bestaande bouw
Eigendomssituatie
Volle eigendom
Ligging
Aan rustige weg, beschutte ligging, in bosrijke omgeving en in woonwijk
Tuin
Achtertuin, voortuin, zijtuin en zonneterras
Achtertuin
243 m² (13,5m diep en 18m breed)

Voorzieningen in de buurt

Boodschappen0,4 km
Grote supermarkt0,6 km
Cafetaria0,5 km
Restaurant0,5 km
Huisarts0,6 km
Ziekenhuis4,2 km
Kinderdagverblijf0,5 km
BSO0,5 km
Alle voorzieningen in 't Hart

Binnenkijken bij Prinsenhof 4 te Soest

Meer meldingen in deze omgeving

Binnenkijken bij
Maandag 6-4-2026
Koninginnelaan 155, 3762DD Soest

Binnenkijken bij
Donderdag 2-4-2026
Leeuwerikweg 6, 3762VH Soest

Binnenkijken bij
Zondag 29-3-2026
Nieuwstraat 38, 3762TR Soest

Binnenkijken bij
Zondag 29-3-2026
Beetzlaan 72B, 3762CG Soest

Binnenkijken bij
Zondag 29-3-2026
van Straelenlaan 7, 3762CS Soest

112 melding
Zaterdag 28-3-2026 om 12:20
Groen van Prinstererstraat, 3762TS Soest

Nieuw bedrijf
Maart 2026
Beckeringhstraat 3608, 3762EX Soest

Nieuw bedrijf
Maart 2026
Beckeringhstraat 3608, 3762EX Soest

Direct een e-mail ontvangen bij nieuwe meldingen in deze regio?

Meld je dan GRATIS aan voor de Oozo Alert service voor 't Hart

Instellen

Meer nieuws in 't Hart

Weten hoe eenvoudig het is om af te vallen? Zonder pillen en smeersels en zonder je in het zweet te werken!
Kijk op eenvoudig-afvallen.nl

© 2012 - 2026 OOZO.nl - info@oozo.nl - Gegevens verwijderen? | Disclaimer | Privacy statement