Woning Limburglaan 6 Son en Breugel

Limburglaan 6, 5691KR Son en Breugel

Ontvang updates voor De Gentiaan

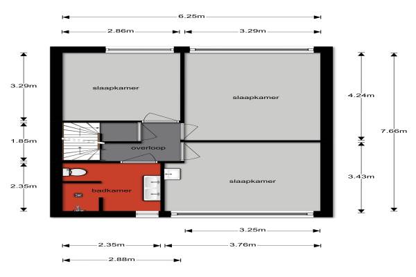
Het adres van deze woning uit 1971 is Limburglaan 6 te Son en Breugel. Het pand heeft een oppervlakte van 117m² en een perceeloppervlakte van 191m² en heeft 5 kamers kamers waarvan 4 slaapkamers. De geschatte waarde van deze woning is € 257.500.

Bekijk alle woningen in De Gentiaan

Gegevens van Eengezinswoning, tussenwoning

Bouwjaar
1971
Geschatte waarde
€ 257.500
Oppervlakte
117 m2
Inhoud
412 m3
Aantal kamers
5 kamers
Slaapkamers
4
Badkamers
1 badkamer en 1 apart toilet
Soort bouw
Bestaande bouw
Eigendomssituatie
Volle eigendom
Ligging
Aan rustige weg en in woonwijk
Tuin
Achtertuin en voortuin
Achtertuin
90 m² (15m diep en 6m breed)

Voorzieningen in de buurt

Boodschappen0,7 km
Grote supermarkt0,7 km
Cafetaria0,7 km
Restaurant2,2 km
Huisarts0,8 km
Ziekenhuis8,7 km
Kinderdagverblijf0,6 km
BSO0,5 km
Alle voorzieningen in De Gentiaan

Binnenkijken bij Limburglaan 6 te Son en Breugel

Meer meldingen in deze omgeving

Nieuw bedrijf
Januari 2026
Betuwepad 26, 5691LN Son en Breugel

Binnenkijken bij
Woensdag 21-1-2026
Limburglaan 30, 5691KR Son en Breugel

Binnenkijken bij
Donderdag 15-1-2026
de Wadden 48, 5691ZG Son en Breugel

112 melding
Woensdag 14-1-2026 om 08:50
Honingbij, 5692VE Son en Breugel

112 melding
Zondag 11-1-2026 om 17:10
Maaslaan, Son en Breugel

Binnenkijken bij
Vrijdag 9-1-2026
Drentelaan 44, 5691KT Son en Breugel

Binnenkijken bij
Vrijdag 9-1-2026
Texellaan 11, 5691ZL Son en Breugel

Binnenkijken bij
Woensdag 7-1-2026
Aziëlaan 89, 5691LB Son en Breugel

Direct een e-mail ontvangen bij nieuwe meldingen in deze regio?

Meld je dan GRATIS aan voor de Oozo Alert service voor De Gentiaan

Instellen

Meer nieuws in De Gentiaan

Weten hoe eenvoudig het is om af te vallen? Zonder pillen en smeersels en zonder je in het zweet te werken!
Kijk op eenvoudig-afvallen.nl

© 2012 - 2026 OOZO.nl - info@oozo.nl - Gegevens verwijderen? | Disclaimer | Privacy statement