Woning Bijkerserf 4 Staphorst

Bijkerserf 4, 7951JE Staphorst

Ontvang updates voor Staphorst-Zuid

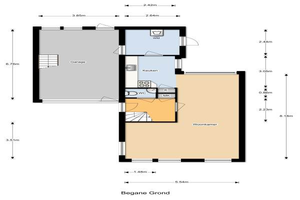
Het adres van deze woning uit 1986 is Bijkerserf 4 te Staphorst. Het pand heeft een oppervlakte van 124m² en een perceeloppervlakte van 305m² en heeft 5 kamers kamers waarvan 4 slaapkamers. De geschatte waarde van deze woning is € 289.000.

Bekijk alle woningen in Staphorst-Zuid

Gegevens van Eengezinswoning, 2-onder-1-kapwoning

Bouwjaar
1986
Geschatte waarde
€ 289.000
Oppervlakte
124 m2
Inhoud
601 m3
Aantal kamers
5 kamers
Slaapkamers
4
Badkamers
1 apart toilet
Soort bouw
Bestaande bouw
Eigendomssituatie
Volle eigendom
Ligging
Aan rustige weg, in woonwijk en beschutte ligging
Tuin
Achtertuin, voortuin en zonneterras
Achtertuin
105 m² (10m diep en 10,5m breed)

Voorzieningen in de buurt

Boodschappen0,9 km
Grote supermarkt0,9 km
Cafetaria0,9 km
Restaurant0,9 km
Huisarts0,8 km
Ziekenhuis7,5 km
Kinderdagverblijf0,4 km
BSO0,7 km
Alle voorzieningen in Staphorst-Zuid

Binnenkijken bij Bijkerserf 4 te Staphorst

Meer meldingen in deze omgeving

Binnenkijken bij
Maandag 9-3-2026
Schemperserf 65, 7951JM Staphorst

Nieuw bedrijf
Maart 2026
Costersland 9, 7951HD Staphorst

Binnenkijken bij
Dinsdag 3-3-2026
Patrijs 17, 7951VG Staphorst

Binnenkijken bij
Dinsdag 3-3-2026
Russchersland 13, 7951HK Staphorst

Binnenkijken bij
Maandag 2-3-2026
Mokkenland 66, 7951HG Staphorst

Binnenkijken bij
Donderdag 19-2-2026
Mokkenland 34, 7951HE Staphorst

Nieuw bedrijf
Februari 2026
Staphorster Kerkweg 50, 7951JS Staphorst

Binnenkijken bij
Zondag 1-2-2026
Costersland 17, 7951HD Staphorst

Direct een e-mail ontvangen bij nieuwe meldingen in deze regio?

Meld je dan GRATIS aan voor de Oozo Alert service voor Staphorst-Zuid

Instellen

Meer nieuws in Staphorst-Zuid

Weten hoe eenvoudig het is om af te vallen? Zonder pillen en smeersels en zonder je in het zweet te werken!
Kijk op eenvoudig-afvallen.nl

© 2012 - 2026 OOZO.nl - info@oozo.nl - Gegevens verwijderen? | Disclaimer | Privacy statement