Woning Koningin Wilhelminalaan 42 Willemsoord

Koningin Wilhelminalaan 42, 8338KE Willemsoord

Ontvang updates voor Buitengebied Willemsoord

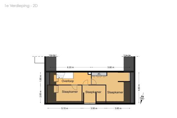
Het adres van deze woning uit 1913 is Koningin Wilhelminalaan 42 te Willemsoord. Het pand heeft een oppervlakte van 243m² en een perceeloppervlakte van 12545m² en heeft 7 kamers kamers waarvan 4 slaapkamers. De geschatte waarde van deze woning is € 850.000.

Bekijk alle woningen in Buitengebied Willemsoord

Gegevens van Woonboerderij

Bouwjaar
1913
Geschatte waarde
€ 850.000
Oppervlakte
243 m2
Inhoud
6667 m3
Aantal kamers
7 kamers
Slaapkamers
4
Badkamers
1 badkamer en 1 apart toilet
Soort bouw
Bestaande bouw
Eigendomssituatie
Volle eigendom
Ligging
Aan bosrand en aan rustige weg
Tuin
Tuin

Voorzieningen in de buurt

Binnenkijken bij Koningin Wilhelminalaan 42 te Willemsoord

Meer meldingen in deze omgeving

Nieuw bedrijf
Maart 2026
Koningin Wilhelminalaan 68, 8338KE Willemsoord

Nieuw bedrijf
Maart 2026
De Pol 25, 8337KT De Pol

Faillissement
Woensdag 18-2-2026
Löhnislaan 2, 8337KG De Pol

112 melding
Donderdag 8-1-2026 om 10:46
Löhnislaan, 8337KG De Pol

112 melding
Donderdag 8-1-2026 om 10:43
Löhnislaan, 8337KG De Pol

Nieuw bedrijf
Januari 2026
Löhnislaan 2, 8337KG DE POL

Nieuw bedrijf
Oktober 2025
Löhnislaan 2, 8337KG De Pol

Nieuw bedrijf
September 2025
Löhnislaan 2, 8337KG De Pol

Direct een e-mail ontvangen bij nieuwe meldingen in deze regio?

Meld je dan GRATIS aan voor de Oozo Alert service voor Buitengebied Willemsoord

Instellen

Meer nieuws in Buitengebied Willemsoord

Weten hoe eenvoudig het is om af te vallen? Zonder pillen en smeersels en zonder je in het zweet te werken!
Kijk op eenvoudig-afvallen.nl

© 2012 - 2026 OOZO.nl - info@oozo.nl - Gegevens verwijderen? | Disclaimer | Privacy statement