Woning Oostercluft 43 Steenwijk

Oostercluft 43, 8332DA Steenwijk

Ontvang updates voor Oostermeenthe

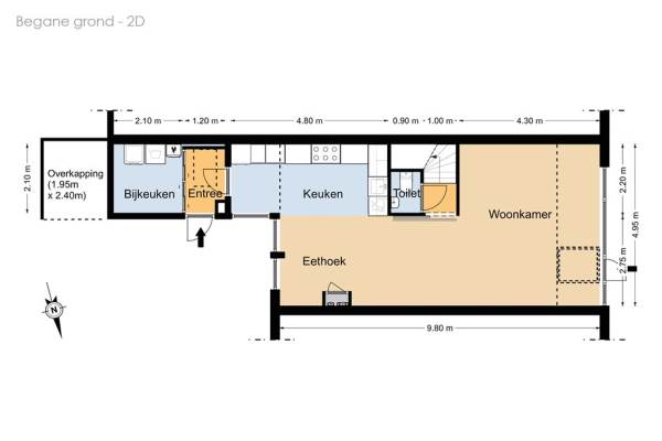
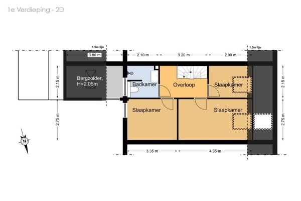
Het adres van deze woning uit 1978 is Oostercluft 43 te Steenwijk. Het pand heeft een oppervlakte van 100m² en een perceeloppervlakte van 142m² en heeft 4 kamers kamers waarvan 3 slaapkamers. De geschatte waarde van deze woning is € 227.500.

Bekijk alle woningen in Oostermeenthe

Gegevens van Eengezinswoning

Bouwjaar
1978
Geschatte waarde
€ 227.500
Oppervlakte
100 m2
Inhoud
393 m3
Aantal kamers
4 kamers
Slaapkamers
3
Badkamers
1 badkamer en 1 apart toilet
Soort bouw
Bestaande bouw
Eigendomssituatie
Volle eigendom
Ligging
In woonwijk
Tuin
Tuin
Achtertuin
50 m² (10 meter diep en 5 meter breed)

Voorzieningen in de buurt

Boodschappen0,5 km
Grote supermarkt0,5 km
Cafetaria0,5 km
Restaurant1,4 km
Huisarts1,2 km
Ziekenhuis1,0 km
Kinderdagverblijf0,5 km
BSO0,5 km
Alle voorzieningen in Oostermeenthe

Binnenkijken bij Oostercluft 43 te Steenwijk

Meer meldingen in deze omgeving

Binnenkijken bij
Zaterdag 14-3-2026
Westercluft 148, 8332AJ Steenwijk

Nieuw bedrijf
Maart 2026
Waardeel 64, 8332BE Steenwijk

Binnenkijken bij
Zaterdag 7-3-2026
de Rikking 3, 8332CA Steenwijk

Binnenkijken bij
Dinsdag 24-2-2026
Oostercluft 123, 8332DC Steenwijk

112 melding
Dinsdag 17-2-2026 om 15:58
De Meenthehof, 8332AZ Steenwijk

112 melding
Maandag 9-2-2026 om 17:49
Herenslagen, Steenwijk

Binnenkijken bij
Donderdag 5-2-2026
Dieptol 46, 8332BP Steenwijk

112 melding
Donderdag 29-1-2026 om 13:10
De Rikking, Steenwijk

Direct een e-mail ontvangen bij nieuwe meldingen in deze regio?

Meld je dan GRATIS aan voor de Oozo Alert service voor Oostermeenthe

Instellen

Meer nieuws in Oostermeenthe

Weten hoe eenvoudig het is om af te vallen? Zonder pillen en smeersels en zonder je in het zweet te werken!
Kijk op eenvoudig-afvallen.nl

© 2012 - 2026 OOZO.nl - info@oozo.nl - Gegevens verwijderen? | Disclaimer | Privacy statement