Woning Prinses Beatrixstraat 18 Steenwijk

Prinses Beatrixstraat 18, 8331EW Steenwijk

Ontvang updates voor Oostwijken, De Beitel

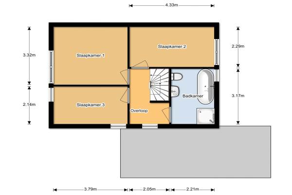
Het adres van deze woning uit 2000 is Prinses Beatrixstraat 18 te Steenwijk. Het pand heeft een oppervlakte van 125m² en een perceeloppervlakte van 252m² en heeft 5 kamers kamers waarvan 3 slaapkamers. De geschatte waarde van deze woning is € 239.000.

Bekijk alle woningen in Oostwijken, De Beitel

Gegevens van Eengezinswoning, 2-onder-1-kapwoning

Bouwjaar
2000
Geschatte waarde
€ 239.000
Oppervlakte
125 m2
Inhoud
415 m3
Aantal kamers
5 kamers
Slaapkamers
3
Badkamers
1 badkamer en 1 apart toilet
Soort bouw
Bestaande bouw
Eigendomssituatie
Volle eigendom
Ligging
In woonwijk
Tuin
Achtertuin, voortuin en zonneterras
Achtertuin
81 m² (9m diep en 9m breed)

Voorzieningen in de buurt

Boodschappen0,7 km
Grote supermarkt0,7 km
Cafetaria0,4 km
Restaurant0,5 km
Huisarts0,6 km
Ziekenhuis1,3 km
Kinderdagverblijf0,5 km
BSO0,9 km
Alle voorzieningen in Oostwijken, De Beitel

Binnenkijken bij Prinses Beatrixstraat 18 te Steenwijk

Meer meldingen in deze omgeving

112 melding
Maandag 13-10-2025 om 16:17
Oostwijkstraat, Steenwijk

112 melding
Maandag 13-10-2025 om 16:17
Oostwijkstraat, Steenwijk

112 melding
Maandag 13-10-2025 om 16:16
Oostwijkstraat, Steenwijk

112 melding
Maandag 13-10-2025 om 16:10
Oostwijkstraat, Steenwijk

112 melding
Maandag 13-10-2025 om 16:10
Oostwijkstraat, Steenwijk

112 melding
Maandag 13-10-2025 om 16:08
Oostwijkstraat, Steenwijk

112 melding
Maandag 13-10-2025 om 16:07
Oostwijkstraat, Steenwijk

112 melding
Maandag 13-10-2025 om 16:05
Oostwijkstraat, Steenwijk

Direct een e-mail ontvangen bij nieuwe meldingen in deze regio?

Meld je dan GRATIS aan voor de Oozo Alert service voor Oostwijken, De Beitel

Instellen

Meer nieuws in Oostwijken, De Beitel

Weten hoe eenvoudig het is om af te vallen? Zonder pillen en smeersels en zonder je in het zweet te werken!
Kijk op eenvoudig-afvallen.nl

© 2012 - 2025 OOZO.nl - info@oozo.nl - Gegevens verwijderen? | Disclaimer | Privacy statement