Woning Bergsteinlaan 19 Tuk

Bergsteinlaan 19, 8334MJ Tuk

Ontvang updates voor Tuk

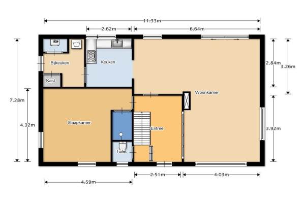
Het adres van deze woning uit 1972 is Bergsteinlaan 19 te Tuk. Het pand heeft een oppervlakte van 120m² en een perceeloppervlakte van 595m² en heeft 4 kamers kamers waarvan 3 slaapkamers. De geschatte waarde van deze woning is € 329.000.

Bekijk alle woningen in Tuk

Gegevens van Eengezinswoning, vrijstaande woning

Bouwjaar
1972
Geschatte waarde
€ 329.000
Oppervlakte
120 m2
Inhoud
410 m3
Aantal kamers
4 kamers
Slaapkamers
3
Badkamers
2 badkamers en 1 apart toilet
Soort bouw
Bestaande bouw
Eigendomssituatie
Volle eigendom
Ligging
Aan rustige weg, in woonwijk, beschutte ligging en in bosrijke omgeving
Tuin
Achtertuin, voortuin en zijtuin
Achtertuin
289 m² (17m diep en 17m breed)

Voorzieningen in de buurt

Binnenkijken bij Bergsteinlaan 19 te Tuk

Meer meldingen in deze omgeving

Nieuw bedrijf
November 2025
Oldemarktseweg 53, 8334SK Tuk

Binnenkijken bij
Vrijdag 21-11-2025
Oosterhoek 45, 8334RD Tuk

Nieuw bedrijf
November 2025
Bakkersveld 57, 8334NG Tuk

Onroerend goed
Dinsdag 11-11-2025
Tukseweg 172- 178, 8334RW Tuk

Binnenkijken bij
Dinsdag 11-11-2025
Oldemarktseweg 24, 8334SL Tuk

Binnenkijken bij
Woensdag 29-10-2025
Bergsteinlaan 48, 8334MP Tuk

112 melding
Zondag 19-10-2025 om 00:16
Bergweg, Tuk

112 melding
Zaterdag 18-10-2025 om 23:34
Bergweg, Tuk

Direct een e-mail ontvangen bij nieuwe meldingen in deze regio?

Meld je dan GRATIS aan voor de Oozo Alert service voor Tuk

Instellen

Meer nieuws in Tuk

Weten hoe eenvoudig het is om af te vallen? Zonder pillen en smeersels en zonder je in het zweet te werken!
Kijk op eenvoudig-afvallen.nl

© 2012 - 2025 OOZO.nl - info@oozo.nl - Gegevens verwijderen? | Disclaimer | Privacy statement