Woning Titus Brandsmastraat 117 Breukelen

Titus Brandsmastraat 117, 3621KC Breukelen

Ontvang updates voor Breukelen Noord

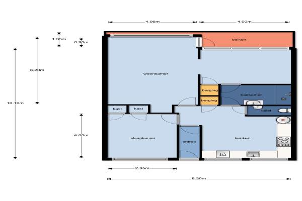
Het adres van deze woning uit 1965 is Titus Brandsmastraat 117 te Breukelen. Het pand heeft een oppervlakte van 88m² en heeft 4 kamers kamers waarvan 1 slaapkamers. De geschatte waarde van deze woning is € 195.000.

Bekijk alle woningen in Breukelen Noord

Gegevens van Galerijflat (appartement)

Bouwjaar
1965
Geschatte waarde
€ 195.000
Oppervlakte
88 m2
Inhoud
275 m3
Aantal kamers
4 kamers
Slaapkamers
1
Badkamers
1 badkamer en 1 apart toilet
Soort bouw
Bestaande bouw
Eigendomssituatie
Volle eigendom
Ligging
Aan water en in woonwijk

Voorzieningen in de buurt

Boodschappen0,4 km
Grote supermarkt0,4 km
Cafetaria0,4 km
Restaurant1,1 km
Huisarts0,8 km
Ziekenhuis11,7 km
Kinderdagverblijf0,6 km
BSO0,5 km
Alle voorzieningen in Breukelen Noord

Binnenkijken bij Titus Brandsmastraat 117 te Breukelen

Meer meldingen in deze omgeving

112 melding
Maandag 20-4-2026 om 15:04
Gijsbrecht van Nijenrodestraat, 3621GE Breukelen

112 melding
Maandag 20-4-2026 om 15:04
Gijsbrecht van Nijenrodestraat, 3621GE Breukelen

112 melding
Maandag 20-4-2026 om 09:05
Silversteyn, Breukelen

112 melding
Maandag 20-4-2026 om 07:33
Bisschopswater, 3621WX Breukelen

112 melding
Zondag 19-4-2026 om 12:42
3621BZ Breukelen

112 melding
Zondag 19-4-2026 om 12:42
3621BZ Breukelen

112 melding
Zaterdag 18-4-2026 om 15:33
Wiardi Beckmanstraat, Breukelen

112 melding
Zaterdag 18-4-2026 om 15:33
Wiardi Beckmanstraat, Breukelen

Direct een e-mail ontvangen bij nieuwe meldingen in deze regio?

Meld je dan GRATIS aan voor de Oozo Alert service voor Breukelen Noord

Instellen

Meer nieuws in Breukelen Noord

Weten hoe eenvoudig het is om af te vallen? Zonder pillen en smeersels en zonder je in het zweet te werken!
Kijk op eenvoudig-afvallen.nl

© 2012 - 2026 OOZO.nl - info@oozo.nl - Gegevens verwijderen? | Disclaimer | Privacy statement