Woning Josinahof 13 Breukelen

Josinahof 13, 3621GC Breukelen

Ontvang updates voor Breukelen Noord

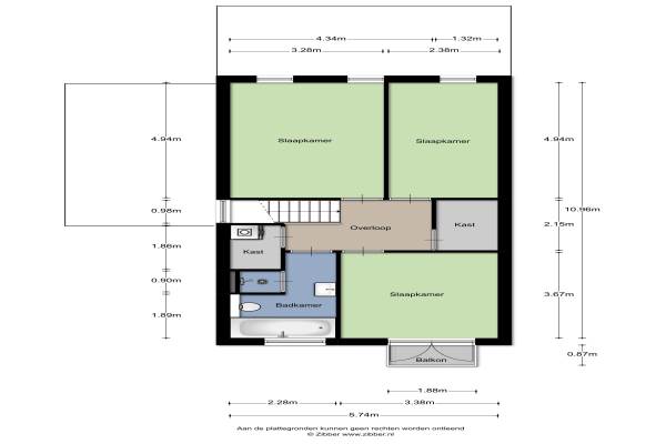
Het adres van deze woning uit 2005 is Josinahof 13 te Breukelen. Het pand heeft een oppervlakte van 143m² en een perceeloppervlakte van 220m² en heeft 4 kamers kamers waarvan 3 slaapkamers. De geschatte waarde van deze woning is € 599.000.

Bekijk alle woningen in Breukelen Noord

Gegevens van Eengezinswoning, geschakelde 2-onder-1-kapwoning

Bouwjaar
2005
Geschatte waarde
€ 599.000
Oppervlakte
143 m2
Inhoud
575 m3
Aantal kamers
4 kamers
Slaapkamers
3
Badkamers
1 badkamer en 1 apart toilet
Soort bouw
Bestaande bouw
Eigendomssituatie
Volle eigendom
Ligging
In woonwijk
Tuin
Achtertuin en voortuin
Achtertuin
62 m² (8,9m diep en 9,2m breed)

Voorzieningen in de buurt

Boodschappen0,4 km
Grote supermarkt0,4 km
Cafetaria0,4 km
Restaurant1,1 km
Huisarts0,8 km
Ziekenhuis11,7 km
Kinderdagverblijf0,6 km
BSO0,5 km
Alle voorzieningen in Breukelen Noord

Binnenkijken bij Josinahof 13 te Breukelen

Meer meldingen in deze omgeving

Binnenkijken bij
Donderdag 12-3-2026
Linnaeusdreef 23, 3621XT Breukelen

112 melding
Dinsdag 10-3-2026 om 14:28
Gerard Splinter van Ruwiellaan, 3621XB Breukelen

112 melding
Dinsdag 10-3-2026 om 07:58
Gerard Splinter van Ruwiellaan, 3621XB Breukelen

Binnenkijken bij
Dinsdag 10-3-2026
Wiardi Beckmanstraat 89, 3621HC Breukelen

112 melding
Maandag 9-3-2026 om 09:10
Bisschopswater, 3621 Breukelen

112 melding
Maandag 9-3-2026 om 09:10
Bisschopswater, 3621 Breukelen

Binnenkijken bij
Maandag 9-3-2026
Orttswarande 1, 3621XM Breukelen

Nieuw bedrijf
Maart 2026
Schepersweg 257, 3621JJ Breukelen

Direct een e-mail ontvangen bij nieuwe meldingen in deze regio?

Meld je dan GRATIS aan voor de Oozo Alert service voor Breukelen Noord

Instellen

Meer nieuws in Breukelen Noord

Weten hoe eenvoudig het is om af te vallen? Zonder pillen en smeersels en zonder je in het zweet te werken!
Kijk op eenvoudig-afvallen.nl

© 2012 - 2026 OOZO.nl - info@oozo.nl - Gegevens verwijderen? | Disclaimer | Privacy statement