Woning Fazantenkamp 229 Maarssen

Fazantenkamp 229, 3607CL Maarssen

Ontvang updates voor Fazantenkamp

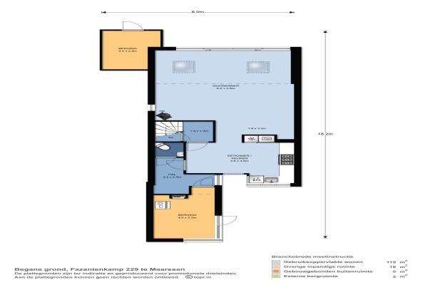
Het adres van deze woning uit 1977 is Fazantenkamp 229 te Maarssen. Het pand heeft een oppervlakte van 119m² en een perceeloppervlakte van 222m² en heeft 5 kamers kamers waarvan 4 slaapkamers. De geschatte waarde van deze woning is € 339.000.

Bekijk alle woningen in Fazantenkamp

Gegevens van Eengezinswoning, hoekwoning

Bouwjaar
1977
Geschatte waarde
€ 339.000
Oppervlakte
119 m2
Inhoud
400 m3
Aantal kamers
5 kamers
Slaapkamers
4
Badkamers
1 badkamer en 1 apart toilet
Soort bouw
Bestaande bouw
Eigendomssituatie
Volle eigendom
Ligging
Aan rustige weg en in woonwijk
Tuin
Achtertuin en voortuin
Achtertuin
96 m² (12m diep en 8m breed)

Voorzieningen in de buurt

Boodschappen1,0 km
Grote supermarkt0,6 km
Cafetaria0,6 km
Restaurant1,0 km
Huisarts0,9 km
Ziekenhuis5,1 km
Kinderdagverblijf0,4 km
BSO0,3 km
Alle voorzieningen in Fazantenkamp

Binnenkijken bij Fazantenkamp 229 te Maarssen

Meer meldingen in deze omgeving

112 melding
Donderdag 4-12-2025 om 22:20
Fazantenkamp, Maarssen

112 melding
Donderdag 4-12-2025 om 15:00
Fazantenkamp, 3607DC Maarssen

112 melding
Woensdag 3-12-2025 om 19:48
Fazantenkamp, 3607CD Maarssen

112 melding
Woensdag 3-12-2025 om 19:48
Fazantenkamp, 3607CD Maarssen

112 melding
Woensdag 3-12-2025 om 19:48
Fazantenkamp, 3607CD Maarssen

112 melding
Woensdag 3-12-2025 om 10:35
Fazantenkamp, 3607DC Maarssen

112 melding
Dinsdag 2-12-2025 om 15:20
Fazantenkamp, 3607CE Maarssen

112 melding
Dinsdag 2-12-2025 om 15:19
Fazantenkamp, 3607CE Maarssen

Direct een e-mail ontvangen bij nieuwe meldingen in deze regio?

Meld je dan GRATIS aan voor de Oozo Alert service voor Fazantenkamp

Instellen

Meer nieuws in Fazantenkamp

Weten hoe eenvoudig het is om af te vallen? Zonder pillen en smeersels en zonder je in het zweet te werken!
Kijk op eenvoudig-afvallen.nl

© 2012 - 2025 OOZO.nl - info@oozo.nl - Gegevens verwijderen? | Disclaimer | Privacy statement