Woning Buiteneinde 46 Strijen

Buiteneinde 46, 3291AH Strijen

Ontvang updates voor Noord

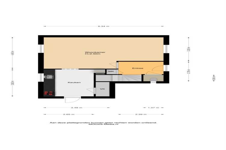
Het adres van deze woning uit 1948 is Buiteneinde 46 te Strijen. Het pand heeft een oppervlakte van 85m² en een perceeloppervlakte van 355m² en heeft 4 kamers kamers waarvan 2 slaapkamers. De geschatte waarde van deze woning is € 300.000.

Bekijk alle woningen in Noord

Gegevens van Eengezinswoning, 2-onder-1-kapwoning

Bouwjaar
1948
Geschatte waarde
€ 300.000
Oppervlakte
85 m2
Inhoud
295 m3
Aantal kamers
4 kamers
Slaapkamers
2
Badkamers
1 badkamer en 1 apart toilet
Soort bouw
Bestaande bouw
Eigendomssituatie
Volle eigendom
Ligging
Aan rustige weg
Tuin
Achtertuin en voortuin
Achtertuin
220 m² (20m diep en 11m breed)

Voorzieningen in de buurt

Binnenkijken bij Buiteneinde 46 te Strijen

Meer meldingen in deze omgeving

112 melding
Woensdag 19-11-2025 om 13:47
Grote Weel, 3291DA Strijen

112 melding
Maandag 17-11-2025 om 08:15
P. de Jongstelaan, 3291TS Strijen

112 melding
Vrijdag 14-11-2025 om 17:07
Waleweg, 3291AX Strijen

112 melding
Donderdag 13-11-2025 om 17:18
P. de Jongstelaan, 3291TS Strijen

112 melding
Donderdag 13-11-2025 om 09:10
Grote Weel, 3291DA Strijen

112 melding
Woensdag 12-11-2025 om 16:42
Nieuwestraat, 3291AN Strijen

112 melding
Woensdag 12-11-2025 om 08:44
Nieuwestraat, 3291AN Strijen

112 melding
Dinsdag 11-11-2025 om 23:15
Grote Weel, 3291DA Strijen

Direct een e-mail ontvangen bij nieuwe meldingen in deze regio?

Meld je dan GRATIS aan voor de Oozo Alert service voor Noord

Instellen

Meer nieuws in Noord

Weten hoe eenvoudig het is om af te vallen? Zonder pillen en smeersels en zonder je in het zweet te werken!
Kijk op eenvoudig-afvallen.nl

© 2012 - 2025 OOZO.nl - info@oozo.nl - Gegevens verwijderen? | Disclaimer | Privacy statement