Woning L.J. Timmerstraat 32 Bolsward

L.J. Timmerstraat 32, 8701DE Bolsward

Ontvang updates voor Bolsward-Noord

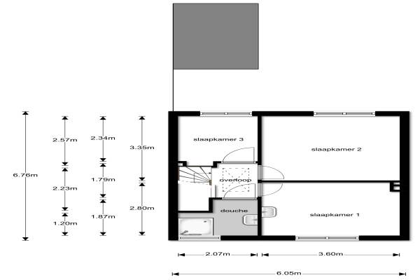
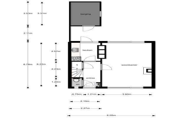
Het adres van deze woning uit 1961 is L.J. Timmerstraat 32 te Bolsward. Het pand heeft een oppervlakte van 76m² en een perceeloppervlakte van 140m² en heeft 4 kamers kamers waarvan 3 slaapkamers. De geschatte waarde van deze woning is € 122.000.

Bekijk alle woningen in Bolsward-Noord

Gegevens van Eengezinswoning, tussenwoning

Bouwjaar
1961
Geschatte waarde
€ 122.000
Oppervlakte
76 m2
Inhoud
295 m3
Aantal kamers
4 kamers
Slaapkamers
3
Badkamers
1 badkamer en 1 apart toilet
Soort bouw
Bestaande bouw
Eigendomssituatie
Volle eigendom
Ligging
In woonwijk
Tuin
Achtertuin en voortuin
Achtertuin
34 m² (11,5m diep en 5,5m breed)

Voorzieningen in de buurt

Boodschappen0,4 km
Grote supermarkt0,4 km
Cafetaria0,7 km
Restaurant0,7 km
Huisarts0,7 km
Ziekenhuis10,0 km
Kinderdagverblijf0,4 km
BSO0,4 km
Alle voorzieningen in Bolsward-Noord

Binnenkijken bij L.J. Timmerstraat 32 te Bolsward

Meer meldingen in deze omgeving

Binnenkijken bij
Zondag 21-12-2025
Samuel van Haringhouckstraat 65, 8701DX Bolsward

112 melding
Dinsdag 16-12-2025 om 09:22
Gysbert Japicxlaan, Bolsward

Nieuw bedrijf
December 2025
L.J. Timmerstraat 10, 8701DE Bolsward

Nieuw bedrijf
November 2025
Industriepark 2, 8701PN Bolsward

Onroerend goed
Dinsdag 11-11-2025
Hichtumerweg 25, 8701PG Bolsward

Faillissement
Maandag 10-11-2025
Industriepark 10, 8701PN Bolsward

Faillissement
Maandag 10-11-2025
Industriepark 10, 8701PN Bolsward

112 melding
Zaterdag 1-11-2025 om 12:22
Dr. Joost Halbertsmastraat, Bolsward

Direct een e-mail ontvangen bij nieuwe meldingen in deze regio?

Meld je dan GRATIS aan voor de Oozo Alert service voor Bolsward-Noord

Instellen

Meer nieuws in Bolsward-Noord

Weten hoe eenvoudig het is om af te vallen? Zonder pillen en smeersels en zonder je in het zweet te werken!
Kijk op eenvoudig-afvallen.nl

© 2012 - 2025 OOZO.nl - info@oozo.nl - Gegevens verwijderen? | Disclaimer | Privacy statement