Woning Harlingerstraat 33 Bolsward

Harlingerstraat 33, 8701WP Bolsward

Ontvang updates voor Bolsward-Zuidwest

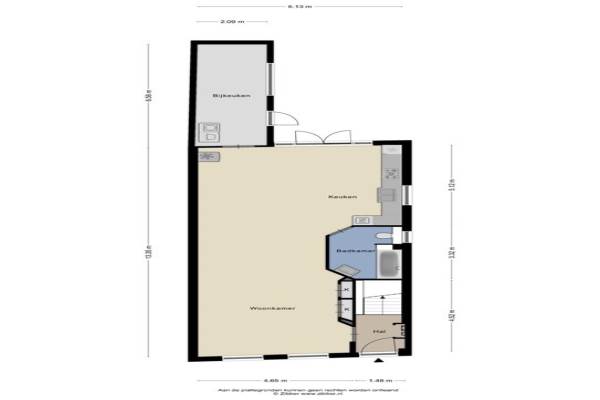
Het adres van deze woning uit 1870 is Harlingerstraat 33 te Bolsward. Het pand heeft een oppervlakte van 159m² en een perceeloppervlakte van 272m² en heeft 5 kamers kamers waarvan 4 slaapkamers. De geschatte waarde van deze woning is € 325.000.

Bekijk alle woningen in Bolsward-Zuidwest

Gegevens van Eengezinswoning

Bouwjaar
1870
Geschatte waarde
€ 325.000
Oppervlakte
159 m2
Inhoud
597 m3
Aantal kamers
5 kamers
Slaapkamers
4
Badkamers
2 badkamers
Soort bouw
Bestaande bouw
Eigendomssituatie
Volle eigendom
Tuin
Tuin
Achtertuin
135 m² (22 meter diep en 7 meter breed)

Voorzieningen in de buurt

Boodschappen0,5 km
Grote supermarkt0,7 km
Cafetaria0,3 km
Restaurant0,2 km
Huisarts0,7 km
Ziekenhuis10,0 km
Kinderdagverblijf0,8 km
BSO0,7 km
Alle voorzieningen in Bolsward-Zuidwest

Binnenkijken bij Harlingerstraat 33 te Bolsward

Meer meldingen in deze omgeving

Binnenkijken bij
Zaterdag 20-12-2025
3e Hollandiastraat 4, 8701WJ Bolsward

Binnenkijken bij
Dinsdag 25-11-2025
Knetemannstraat 16, 8701WE Bolsward

112 melding
Dinsdag 18-11-2025 om 11:35
Oordje, 8701WD Bolsward

112 melding
Dinsdag 18-11-2025 om 11:35
Oordje, 8701WD Bolsward

112 melding
Dinsdag 18-11-2025 om 11:31
Oordje, 8701WD Bolsward

Binnenkijken bij
Zaterdag 15-11-2025
1e Hollandiastraat 27, 8701WN Bolsward

Binnenkijken bij
Dinsdag 11-11-2025
Knetemannstraat 15, 8701WE Bolsward

Binnenkijken bij
Woensdag 29-10-2025
2e Hollandiastraat 29, 8701WK Bolsward

Direct een e-mail ontvangen bij nieuwe meldingen in deze regio?

Meld je dan GRATIS aan voor de Oozo Alert service voor Bolsward-Zuidwest

Instellen

Meer nieuws in Bolsward-Zuidwest

Weten hoe eenvoudig het is om af te vallen? Zonder pillen en smeersels en zonder je in het zweet te werken!
Kijk op eenvoudig-afvallen.nl

© 2012 - 2026 OOZO.nl - info@oozo.nl - Gegevens verwijderen? | Disclaimer | Privacy statement