Woning De Kearnstien 16 IJlst

De Kearnstien 16, 8651BX IJlst

Ontvang updates voor De Rat-Cloosterkamp

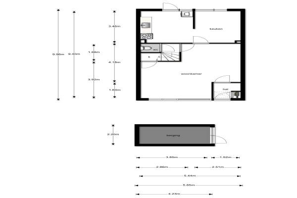
Het adres van deze woning uit 1974 is De Kearnstien 16 te IJlst. Het pand heeft een oppervlakte van 92m² en een perceeloppervlakte van 250m² en heeft 4 kamers kamers waarvan 3 slaapkamers. De geschatte waarde van deze woning is € 135.000.

Bekijk alle woningen in De Rat-Cloosterkamp

Gegevens van Eengezinswoning, hoekwoning

Bouwjaar
1974
Geschatte waarde
€ 135.000
Oppervlakte
92 m2
Inhoud
300 m3
Aantal kamers
4 kamers
Slaapkamers
3
Badkamers
1 badkamer en 1 apart toilet
Soort bouw
Bestaande bouw
Eigendomssituatie
Volle eigendom
Ligging
In woonwijk en aan vaarwater
Tuin
Achtertuin en voortuin
Achtertuin
140 m² (17,5m diep en 8m breed)

Voorzieningen in de buurt

Boodschappen0,7 km
Grote supermarkt0,7 km
Cafetaria0,9 km
Restaurant0,9 km
Huisarts1,7 km
Ziekenhuis5,2 km
Kinderdagverblijf0,6 km
BSO1,4 km
Alle voorzieningen in De Rat-Cloosterkamp

Binnenkijken bij De Kearnstien 16 te IJlst

Meer meldingen in deze omgeving

Binnenkijken bij
Vrijdag 19-9-2025
De Jagersherne 8, 8651CH IJlst

112 melding
Zondag 14-9-2025 om 18:25
De Dassenboarch, IJlst

Nieuw bedrijf
September 2025
Croleskwartier 86, 8651HG IJlst

Binnenkijken bij
Vrijdag 25-7-2025
Sudergoweg 42, 8651CN IJlst

Nieuw bedrijf
Juli 2025
De Sânhorst 2, 8651CM IJlst

112 melding
Zaterdag 19-7-2025 om 22:47
De Sânhorst, 8651CM IJlst

Binnenkijken bij
Vrijdag 18-7-2025
Croleskwartier 82, 8651HG IJlst

Nieuw bedrijf
Juli 2025
Croleskwartier 8, 8651HD IJlst

Direct een e-mail ontvangen bij nieuwe meldingen in deze regio?

Meld je dan GRATIS aan voor de Oozo Alert service voor De Rat-Cloosterkamp

Instellen

Meer nieuws in De Rat-Cloosterkamp

Weten hoe eenvoudig het is om af te vallen? Zonder pillen en smeersels en zonder je in het zweet te werken!
Kijk op eenvoudig-afvallen.nl

© 2012 - 2025 OOZO.nl - info@oozo.nl - Gegevens verwijderen? | Disclaimer | Privacy statement