Woning Kalkwurk 7 WORKUM

Kalkwurk 7, 8711KA WORKUM

Ontvang updates voor Workum

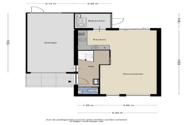
Het adres van deze woning uit 1993 is Kalkwurk 7 te WORKUM. Het pand heeft een oppervlakte van 112m² en een perceeloppervlakte van 294m² en heeft 5 kamers kamers waarvan 4 slaapkamers. De geschatte waarde van deze woning is € 325.000.

Bekijk alle woningen in Workum

Gegevens van Eengezinswoning

Bouwjaar
1993
Geschatte waarde
€ 325.000
Oppervlakte
112 m2
Aantal kamers
5 kamers
Slaapkamers
4
Tuin
Tuin

Voorzieningen in de buurt

Boodschappen0,4 km
Grote supermarkt0,6 km
Cafetaria0,7 km
Restaurant0,4 km
Huisarts0,7 km
Ziekenhuis20,7 km
Kinderdagverblijf0,8 km
BSO0,8 km
Alle voorzieningen in Workum

Binnenkijken bij Kalkwurk 7 te WORKUM

Meer meldingen in deze omgeving

Binnenkijken bij
Dinsdag 9-12-2025
Bûterikkers 16, 8711GV Workum

Nieuw bedrijf
December 2025
Bûterikkers 85, 8711GT Workum

Nieuw bedrijf
December 2025
Tettingburren 19, 8711EK Workum

Nieuw bedrijf
December 2025
Blomikkers 13, 8711DA Workum

Nieuw bedrijf
December 2025
Hans Deinumstrjitte 2, 8711LK Workum

Nieuw bedrijf
December 2025
Inthiemasingel 15, 8711BP Workum

Nieuw bedrijf
December 2025
Tiaralaan 5, 8711CA Workum

Binnenlands nieuws
Woensdag 3-12-2025
Workum

Direct een e-mail ontvangen bij nieuwe meldingen in deze regio?

Meld je dan GRATIS aan voor de Oozo Alert service voor Workum

Instellen

Meer nieuws in Workum

Weten hoe eenvoudig het is om af te vallen? Zonder pillen en smeersels en zonder je in het zweet te werken!
Kijk op eenvoudig-afvallen.nl

© 2012 - 2025 OOZO.nl - info@oozo.nl - Gegevens verwijderen? | Disclaimer | Privacy statement