Woning Sietze Gorterstrjitte 5 Workum

Sietze Gorterstrjitte 5, 8711LM Workum

Ontvang updates voor Workum

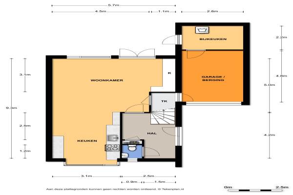
Het adres van deze woning uit 2004 is Sietze Gorterstrjitte 5 te Workum. Het pand heeft een oppervlakte van 140m² en een perceeloppervlakte van 373m² en heeft 8 kamers kamers waarvan 5 slaapkamers. De geschatte waarde van deze woning is € 289.000.

Bekijk alle woningen in Workum

Gegevens van Eengezinswoning, 2-onder-1-kapwoning

Bouwjaar
2004
Geschatte waarde
€ 289.000
Oppervlakte
140 m2
Inhoud
475 m3
Aantal kamers
8 kamers
Slaapkamers
5
Badkamers
1 badkamer en 1 apart toilet
Soort bouw
Bestaande bouw
Eigendomssituatie
Volle eigendom
Ligging
Aan water, aan rustige weg, in woonwijk en aan vaarwater
Tuin
Achtertuin
Achtertuin
110 m² (11m diep en 10m breed)

Voorzieningen in de buurt

Boodschappen0,4 km
Grote supermarkt0,6 km
Cafetaria0,7 km
Restaurant0,4 km
Huisarts0,7 km
Ziekenhuis20,7 km
Kinderdagverblijf0,8 km
BSO0,8 km
Alle voorzieningen in Workum

Binnenkijken bij Sietze Gorterstrjitte 5 te Workum

Meer meldingen in deze omgeving


Nieuw bedrijf
Maart 2026
De Fûke 5, 8711KR Workum

Binnenlands nieuws
Dinsdag 3-3-2026
Workum

Binnenlands nieuws
Zondag 1-3-2026
Workum

Binnenlands nieuws
Zondag 1-3-2026
Workum

Binnenlands nieuws
Zaterdag 28-2-2026
Workum

Onroerend goed
Vrijdag 27-2-2026
Dwarsnoard 21- 23, 8711AP Workum

Binnenkijken bij
Vrijdag 27-2-2026
Dwarsnoard 21, 8711AP Workum

Direct een e-mail ontvangen bij nieuwe meldingen in deze regio?

Meld je dan GRATIS aan voor de Oozo Alert service voor Workum

Instellen

Meer nieuws in Workum

Weten hoe eenvoudig het is om af te vallen? Zonder pillen en smeersels en zonder je in het zweet te werken!
Kijk op eenvoudig-afvallen.nl

© 2012 - 2026 OOZO.nl - info@oozo.nl - Gegevens verwijderen? | Disclaimer | Privacy statement