Woning Duizendblad 18 Sneek

Duizendblad 18, 8607EA Sneek

Ontvang updates voor Duinterpen

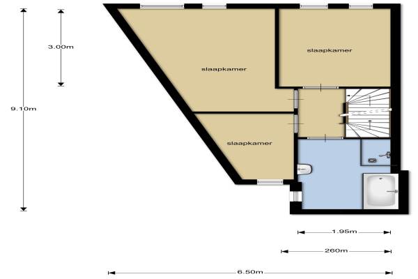
Het adres van deze woning uit 1982 is Duizendblad 18 te Sneek. Het pand heeft een oppervlakte van 105m² en een perceeloppervlakte van 174m² en heeft 5 kamers kamers waarvan 4 slaapkamers. De geschatte waarde van deze woning is € 159.500.

Bekijk alle woningen in Duinterpen

Gegevens van Eengezinswoning, tussenwoning

Bouwjaar
1982
Geschatte waarde
€ 159.500
Oppervlakte
105 m2
Inhoud
325 m3
Aantal kamers
5 kamers
Slaapkamers
4
Badkamers
1 apart toilet
Soort bouw
Bestaande bouw
Eigendomssituatie
Volle eigendom
Tuin
Achtertuin
Achtertuin
77 m² (11m diep en 7m breed)

Voorzieningen in de buurt

Boodschappen0,5 km
Grote supermarkt0,5 km
Cafetaria0,5 km
Restaurant2,1 km
Huisarts2,4 km
Ziekenhuis3,5 km
Kinderdagverblijf0,5 km
BSO1,0 km
Alle voorzieningen in Duinterpen

Binnenkijken bij Duizendblad 18 te Sneek

Meer meldingen in deze omgeving

Nieuw bedrijf
December 2025
Gouden Boers 18, 8607KE Sneek

Nieuw bedrijf
December 2025
Parelmoervlinder 21, 8607HW Sneek

Nieuw bedrijf
December 2025
Parelmoervlinder 21, 8607HW Sneek

Binnenkijken bij
Zaterdag 6-12-2025
Kamille 25, 8607DE Sneek

Nieuw bedrijf
December 2025
Het Volland 2, 8607KN Sneek

Binnenkijken bij
Woensdag 3-12-2025
Parelmoervlinder 18, 8607HW Sneek

Binnenkijken bij
Dinsdag 2-12-2025
Parelmoervlinder 7, 8607HW Sneek

Nieuw bedrijf
November 2025
Penningkruid 33, 8607DG Sneek

Direct een e-mail ontvangen bij nieuwe meldingen in deze regio?

Meld je dan GRATIS aan voor de Oozo Alert service voor Duinterpen

Instellen

Meer nieuws in Duinterpen

Weten hoe eenvoudig het is om af te vallen? Zonder pillen en smeersels en zonder je in het zweet te werken!
Kijk op eenvoudig-afvallen.nl

© 2012 - 2025 OOZO.nl - info@oozo.nl - Gegevens verwijderen? | Disclaimer | Privacy statement