Woning it Harspit 6 Sneek

it Harspit 6, 8604VS Sneek

Ontvang updates voor Stadsfenne

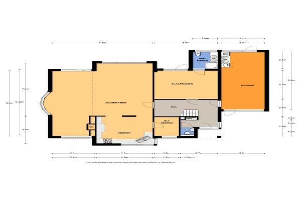
Het adres van deze woning uit 1999 is it Harspit 6 te Sneek. Het pand heeft een oppervlakte van 200m² en een perceeloppervlakte van 768m² en heeft 6 kamers kamers waarvan 4 slaapkamers. De geschatte waarde van deze woning is € 639.000.

Bekijk alle woningen in Stadsfenne

Gegevens van Villa, vrijstaande woning

Bouwjaar
1999
Geschatte waarde
€ 639.000
Oppervlakte
200 m2
Inhoud
760 m3
Aantal kamers
6 kamers
Slaapkamers
4
Badkamers
2 badkamers en 2 aparte toiletten
Soort bouw
Bestaande bouw
Eigendomssituatie
Volle eigendom
Ligging
Aan water, aan rustige weg, in woonwijk en aan vaarwater
Tuin
Achtertuin, voortuin en zijtuin
Achtertuin
357 m² (21m diep en 17m breed)

Voorzieningen in de buurt

Boodschappen0,9 km
Grote supermarkt0,9 km
Cafetaria1,8 km
Restaurant1,2 km
Huisarts1,6 km
Ziekenhuis3,2 km
Kinderdagverblijf0,8 km
BSO0,9 km
Alle voorzieningen in Stadsfenne

Binnenkijken bij it Harspit 6 te Sneek

Meer meldingen in deze omgeving

112 melding
Donderdag 23-4-2026 om 16:12
Bordine, Sneek

Binnenkijken bij
Dinsdag 14-4-2026
Wagenbrugge 28, 8604BG Sneek

Binnenkijken bij
Vrijdag 10-4-2026
Gruitersmalaan 3, 8604ZN Sneek

Nieuw bedrijf
April 2026
de Strikel 4, 8604VV Sneek

Binnenkijken bij
Maandag 6-4-2026
Frittemaleane 60, 8604XD Sneek

Binnenkijken bij
Maandag 6-4-2026
it Harspit 59, 8604VS Sneek

Binnenkijken bij
Zondag 29-3-2026
Bordine 13, 8604AC Sneek

Binnenkijken bij
Zondag 29-3-2026
Bottinge 54I, 8604AK Sneek

Direct een e-mail ontvangen bij nieuwe meldingen in deze regio?

Meld je dan GRATIS aan voor de Oozo Alert service voor Stadsfenne

Instellen

Meer nieuws in Stadsfenne

Weten hoe eenvoudig het is om af te vallen? Zonder pillen en smeersels en zonder je in het zweet te werken!
Kijk op eenvoudig-afvallen.nl

© 2012 - 2026 OOZO.nl - info@oozo.nl - Gegevens verwijderen? | Disclaimer | Privacy statement