Woning Mansel 55 Sneek

Mansel 55, 8603DX Sneek

Ontvang updates voor Zwetteplan

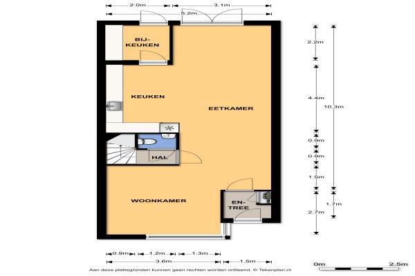
Het adres van deze woning uit 1997 is Mansel 55 te Sneek. Het pand heeft een oppervlakte van 132m² en een perceeloppervlakte van 165m² en heeft 5 kamers kamers waarvan 4 slaapkamers. De geschatte waarde van deze woning is € 249.000.

Bekijk alle woningen in Zwetteplan

Gegevens van Eengezinswoning, tussenwoning

Bouwjaar
1997
Geschatte waarde
€ 249.000
Oppervlakte
132 m2
Inhoud
375 m3
Aantal kamers
5 kamers
Slaapkamers
4
Badkamers
2 badkamers en 1 apart toilet
Soort bouw
Bestaande bouw
Eigendomssituatie
Volle eigendom
Ligging
Aan rustige weg en in woonwijk
Tuin
Achtertuin en voortuin
Achtertuin
50 m² (10m diep en 5m breed)

Voorzieningen in de buurt

Boodschappen1,3 km
Grote supermarkt0,6 km
Cafetaria1,7 km
Restaurant1,6 km
Huisarts1,0 km
Ziekenhuis2,5 km
Kinderdagverblijf0,7 km
BSO0,7 km
Alle voorzieningen in Zwetteplan

Binnenkijken bij Mansel 55 te Sneek

Meer meldingen in deze omgeving

Nieuw bedrijf
Oktober 2025
Mansel 81, 8603DX Sneek

112 melding
Woensdag 22-10-2025 om 20:42
Fearn, Sneek

Binnenkijken bij
Zondag 19-10-2025
Gerben Oppewalstrjitte 5, 8603EJ Sneek

Binnenkijken bij
Donderdag 9-10-2025
Douwe Hiddesstraat 6, 8603EV Sneek

Nieuw bedrijf
Oktober 2025
Dick Brouwerstrjitte 23, 8603ER Sneek

Nieuw bedrijf
Oktober 2025
Dick Brouwerstrjitte 23, 8603ER Sneek

Nieuw bedrijf
Oktober 2025
Master Keulenstrjitte 23, 8603EL Sneek

Nieuw bedrijf
Oktober 2025
Dick Brouwerstrjitte 23, 8603ER Sneek

Direct een e-mail ontvangen bij nieuwe meldingen in deze regio?

Meld je dan GRATIS aan voor de Oozo Alert service voor Zwetteplan

Instellen

Meer nieuws in Zwetteplan

Weten hoe eenvoudig het is om af te vallen? Zonder pillen en smeersels en zonder je in het zweet te werken!
Kijk op eenvoudig-afvallen.nl

© 2012 - 2025 OOZO.nl - info@oozo.nl - Gegevens verwijderen? | Disclaimer | Privacy statement