Woning Mansel 45 Sneek

Mansel 45, 8603DX Sneek

Ontvang updates voor Zwetteplan

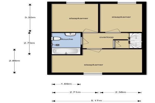
Het adres van deze woning uit 1996 is Mansel 45 te Sneek. Het pand heeft een oppervlakte van 120m² en een perceeloppervlakte van 273m² en heeft 5 kamers kamers waarvan 3 slaapkamers. De geschatte waarde van deze woning is € 285.000.

Bekijk alle woningen in Zwetteplan

Gegevens van Eengezinswoning, 2-onder-1-kapwoning

Bouwjaar
1996
Geschatte waarde
€ 285.000
Oppervlakte
120 m2
Inhoud
430 m3
Aantal kamers
5 kamers
Slaapkamers
3
Badkamers
1 badkamer en 1 apart toilet
Soort bouw
Bestaande bouw
Eigendomssituatie
Volle eigendom
Ligging
Beschutte ligging, in woonwijk en vrij uitzicht
Tuin
Voortuin, zonneterras en achtertuin
Achtertuin
90 m² (10m diep en 9m breed)

Voorzieningen in de buurt

Boodschappen1,3 km
Grote supermarkt0,6 km
Cafetaria1,7 km
Restaurant1,6 km
Huisarts1,0 km
Ziekenhuis2,5 km
Kinderdagverblijf0,7 km
BSO0,7 km
Alle voorzieningen in Zwetteplan

Binnenkijken bij Mansel 45 te Sneek

Meer meldingen in deze omgeving

Nieuw bedrijf
Oktober 2025
Mansel 81, 8603DX Sneek

112 melding
Woensdag 22-10-2025 om 20:42
Fearn, Sneek

Binnenkijken bij
Zondag 19-10-2025
Gerben Oppewalstrjitte 5, 8603EJ Sneek

Binnenkijken bij
Donderdag 9-10-2025
Douwe Hiddesstraat 6, 8603EV Sneek

Nieuw bedrijf
Oktober 2025
Dick Brouwerstrjitte 23, 8603ER Sneek

Nieuw bedrijf
Oktober 2025
Dick Brouwerstrjitte 23, 8603ER Sneek

Nieuw bedrijf
Oktober 2025
Master Keulenstrjitte 23, 8603EL Sneek

Nieuw bedrijf
Oktober 2025
Dick Brouwerstrjitte 23, 8603ER Sneek

Direct een e-mail ontvangen bij nieuwe meldingen in deze regio?

Meld je dan GRATIS aan voor de Oozo Alert service voor Zwetteplan

Instellen

Meer nieuws in Zwetteplan

Weten hoe eenvoudig het is om af te vallen? Zonder pillen en smeersels en zonder je in het zweet te werken!
Kijk op eenvoudig-afvallen.nl

© 2012 - 2025 OOZO.nl - info@oozo.nl - Gegevens verwijderen? | Disclaimer | Privacy statement