Woning Famylje Leverstrjitte 11 Sneek

Famylje Leverstrjitte 11, 8603EC Sneek

Ontvang updates voor Zwetteplan

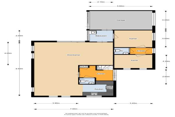
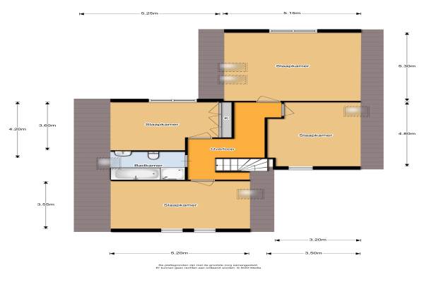
Het adres van deze woning uit 1990 is Famylje Leverstrjitte 11 te Sneek. Het pand heeft een oppervlakte van 190m² en een perceeloppervlakte van 607m² en heeft 7 kamers kamers waarvan 6 slaapkamers. De geschatte waarde van deze woning is € 415.000.

Bekijk alle woningen in Zwetteplan

Gegevens van Eengezinswoning, vrijstaande woning

Bouwjaar
1990
Geschatte waarde
€ 415.000
Oppervlakte
190 m2
Inhoud
700 m3
Aantal kamers
7 kamers
Slaapkamers
6
Badkamers
1 badkamer en 1 apart toilet
Soort bouw
Bestaande bouw
Eigendomssituatie
Volle eigendom
Ligging
In woonwijk
Tuin
Achtertuin, voortuin en zijtuin
Achtertuin
384 m² (16m diep en 24m breed)

Voorzieningen in de buurt

Boodschappen1,3 km
Grote supermarkt0,6 km
Cafetaria1,7 km
Restaurant1,6 km
Huisarts1,0 km
Ziekenhuis2,5 km
Kinderdagverblijf0,7 km
BSO0,7 km
Alle voorzieningen in Zwetteplan

Binnenkijken bij Famylje Leverstrjitte 11 te Sneek

Meer meldingen in deze omgeving

Nieuw bedrijf
Oktober 2025
Mansel 81, 8603DX Sneek

112 melding
Woensdag 22-10-2025 om 20:42
Fearn, Sneek

Binnenkijken bij
Zondag 19-10-2025
Gerben Oppewalstrjitte 5, 8603EJ Sneek

Binnenkijken bij
Donderdag 9-10-2025
Douwe Hiddesstraat 6, 8603EV Sneek

Nieuw bedrijf
Oktober 2025
Dick Brouwerstrjitte 23, 8603ER Sneek

Nieuw bedrijf
Oktober 2025
Dick Brouwerstrjitte 23, 8603ER Sneek

Nieuw bedrijf
Oktober 2025
Master Keulenstrjitte 23, 8603EL Sneek

Nieuw bedrijf
Oktober 2025
Dick Brouwerstrjitte 23, 8603ER Sneek

Direct een e-mail ontvangen bij nieuwe meldingen in deze regio?

Meld je dan GRATIS aan voor de Oozo Alert service voor Zwetteplan

Instellen

Meer nieuws in Zwetteplan

Weten hoe eenvoudig het is om af te vallen? Zonder pillen en smeersels en zonder je in het zweet te werken!
Kijk op eenvoudig-afvallen.nl

© 2012 - 2025 OOZO.nl - info@oozo.nl - Gegevens verwijderen? | Disclaimer | Privacy statement