Woning Trekweg 160 Parrega

Trekweg 160, 8763XB Parrega

Ontvang updates voor Verspreide huizen Parrega

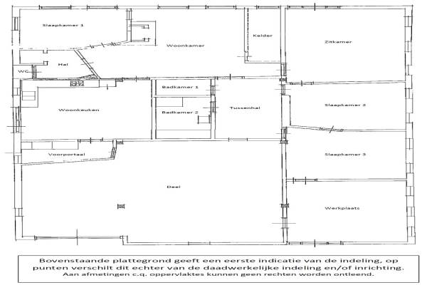
Het adres van deze woning uit 1930 is Trekweg 160 te Parrega. Het pand heeft een oppervlakte van 185m² en een perceeloppervlakte van 925m² en heeft 8 kamers kamers waarvan 3 slaapkamers. De geschatte waarde van deze woning is € 345.000.

Bekijk alle woningen in Verspreide huizen Parrega

Gegevens van Woonboerderij, vrijstaande woning

Bouwjaar
1930
Geschatte waarde
€ 345.000
Oppervlakte
185 m2
Inhoud
1645 m3
Aantal kamers
8 kamers
Slaapkamers
3
Badkamers
2 badkamers en 1 apart toilet
Soort bouw
Bestaande bouw
Eigendomssituatie
Volle eigendom
Ligging
Vrij uitzicht, buiten bebouwde kom en landelijk gelegen
Tuin
Tuin rondom

Voorzieningen in de buurt

Boodschappen4,8 km
Grote supermarkt5,3 km
Cafetaria4,0 km
Restaurant4,7 km
Huisarts4,7 km
Ziekenhuis16,4 km
Kinderdagverblijf3,5 km
BSO3,7 km
Alle voorzieningen in Verspreide huizen Parrega

Binnenkijken bij Trekweg 160 te Parrega

Meer meldingen in deze omgeving

112 melding
Maandag 18-8-2025 om 11:25
Aaltjemeerweg, 8763XA Parrega

Nieuw bedrijf
Maart 2025
Ferwouderpad 1, 8763MC Parrega

Nieuw bedrijf
Maart 2025
Freerk Faberweg 7, 8763XC PARREGA

Nieuw bedrijf
Maart 2025
Freerk Faberweg 9, 8763XC PARREGA

Nieuw bedrijf
Maart 2025
Angterperlaan 9, 8763MB PARREGA

Nieuw bedrijf
Maart 2025
Angterperlaan 18, 8763MB PARREGA

Nieuw bedrijf
Maart 2025
Aaltjemeerweg 20, 8763XA PARREGA

112 melding
Zaterdag 21-12-2024 om 09:53
Aaltjemeerweg, 8763XA Parrega

Direct een e-mail ontvangen bij nieuwe meldingen in deze regio?

Meld je dan GRATIS aan voor de Oozo Alert service voor Verspreide huizen Parrega

Instellen

Meer nieuws in Verspreide huizen Parrega

Weten hoe eenvoudig het is om af te vallen? Zonder pillen en smeersels en zonder je in het zweet te werken!
Kijk op eenvoudig-afvallen.nl

© 2012 - 2025 OOZO.nl - info@oozo.nl - Gegevens verwijderen? | Disclaimer | Privacy statement