Woning Broerstrjitte 28 Oppenhuizen

Broerstrjitte 28, 8625JA Oppenhuizen

Ontvang updates voor Oppenhuizen

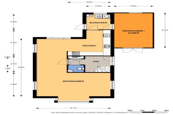
Het adres van deze woning uit 1998 is Broerstrjitte 28 te Oppenhuizen. Het pand heeft een oppervlakte van 130m² en een perceeloppervlakte van 371m² en heeft 5 kamers kamers waarvan 4 slaapkamers. De geschatte waarde van deze woning is € 285.000.

Bekijk alle woningen in Oppenhuizen

Gegevens van Eengezinswoning, vrijstaande woning

Bouwjaar
1998
Geschatte waarde
€ 285.000
Oppervlakte
130 m2
Inhoud
400 m3
Aantal kamers
5 kamers
Slaapkamers
4
Badkamers
1 apart toilet
Soort bouw
Bestaande bouw
Eigendomssituatie
Volle eigendom
Ligging
Aan rustige weg en in woonwijk
Tuin
Achtertuin, voortuin en zijtuin
Achtertuin
120 m² (8m diep en 15m breed)

Voorzieningen in de buurt

Boodschappen0,3 km
Grote supermarkt0,5 km
Cafetaria3,6 km
Restaurant2,7 km
Huisarts3,1 km
Ziekenhuis5,3 km
Kinderdagverblijf0,5 km
BSO0,5 km
Alle voorzieningen in Oppenhuizen

Binnenkijken bij Broerstrjitte 28 te Oppenhuizen

Meer meldingen in deze omgeving

Binnenlands nieuws
Zondag 2-11-2025
Oppenhuizen

Binnenkijken bij
Woensdag 29-10-2025
Tsjerkebuorren 48, 8625HD Oppenhuizen

Nieuw bedrijf
Oktober 2025
Eastwei 4A, 8625HV Oppenhuizen

Binnenlands nieuws
Woensdag 8-10-2025
Oppenhuizen

112 melding
Maandag 29-9-2025 om 16:50
Eastwei, 8625HV Oppenhuizen

112 melding
Maandag 29-9-2025 om 16:47
Eastwei, 8625HV Oppenhuizen

Binnenkijken bij
Maandag 22-9-2025
Noardein 10, 8625TJ Oppenhuizen

Binnenkijken bij
Maandag 22-9-2025
Broerstrjitte 47, 8625JA Oppenhuizen

Direct een e-mail ontvangen bij nieuwe meldingen in deze regio?

Meld je dan GRATIS aan voor de Oozo Alert service voor Oppenhuizen

Instellen

Meer nieuws in Oppenhuizen

Weten hoe eenvoudig het is om af te vallen? Zonder pillen en smeersels en zonder je in het zweet te werken!
Kijk op eenvoudig-afvallen.nl

© 2012 - 2025 OOZO.nl - info@oozo.nl - Gegevens verwijderen? | Disclaimer | Privacy statement