Woning Buorren 28 Uitwellingerga

Buorren 28, 8624TN Uitwellingerga

Ontvang updates voor Uitwellingerga

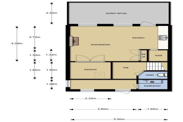
Het adres van deze woning is Buorren 28 te Uitwellingerga. Het pand heeft een oppervlakte van 51m² en een perceeloppervlakte van 183m² en heeft 3 kamers kamers waarvan 1 slaapkamers. De geschatte waarde van deze woning is € 84.500.

Bekijk alle woningen in Uitwellingerga

Gegevens van Eengezinswoning, tussenwoning

Bouwjaar
Voor 1906
Geschatte waarde
€ 84.500
Oppervlakte
51 m2
Inhoud
140 m3
Aantal kamers
3 kamers
Slaapkamers
1
Badkamers
1 apart toilet
Soort bouw
Bestaande bouw
Eigendomssituatie
Volle eigendom
Ligging
In woonwijk, vrij uitzicht en beschutte ligging
Tuin
Voortuin en zijtuin

Voorzieningen in de buurt

Boodschappen1,4 km
Grote supermarkt1,6 km
Cafetaria4,9 km
Restaurant3,1 km
Huisarts4,4 km
Ziekenhuis6,6 km
Kinderdagverblijf1,6 km
BSO1,6 km
Alle voorzieningen in Uitwellingerga

Binnenkijken bij Buorren 28 te Uitwellingerga

Meer meldingen in deze omgeving

112 melding
Vrijdag 8-5-2026 om 14:59
Eastwei, 8624TG Uitwellingerga

Nieuw bedrijf
Mei 2026
Lytse Súdein 39, 8624TS Uitwellingerga

Binnenlands nieuws
Donderdag 23-4-2026
Uitwellingerga

112 melding
Woensdag 25-3-2026 om 20:17
Uitwellingerga

112 melding
Woensdag 25-3-2026 om 16:30
Nije Dyk, 8624TZ Uitwellingerga

Nieuw bedrijf
Maart 2026
Buorren 17, 8624TL Uitwellingerga

Binnenlands nieuws
Donderdag 26-2-2026
Uitwellingerga

Binnenkijken bij
Zondag 22-2-2026
Koartebaen 11, 8624TD Uitwellingerga

Direct een e-mail ontvangen bij nieuwe meldingen in deze regio?

Meld je dan GRATIS aan voor de Oozo Alert service voor Uitwellingerga

Instellen

Meer nieuws in Uitwellingerga

Weten hoe eenvoudig het is om af te vallen? Zonder pillen en smeersels en zonder je in het zweet te werken!
Kijk op eenvoudig-afvallen.nl

© 2012 - 2026 OOZO.nl - info@oozo.nl - Gegevens verwijderen? | Disclaimer | Privacy statement