Woning Grenulaan 47 Terneuzen

Grenulaan 47, 4531AC Terneuzen

Ontvang updates voor Binnenstad-Java

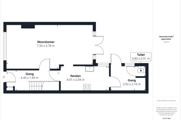
Het adres van deze woning uit 1940 is Grenulaan 47 te Terneuzen. Het pand heeft een oppervlakte van 92m² en een perceeloppervlakte van 78m² en heeft 4 kamers kamers waarvan 3 slaapkamers. De geschatte waarde van deze woning is € 198.000.

Bekijk alle woningen in Binnenstad-Java

Gegevens van Eengezinswoning, eindwoning

Bouwjaar
1940
Geschatte waarde
€ 198.000
Oppervlakte
92 m2
Inhoud
315 m3
Aantal kamers
4 kamers
Slaapkamers
3
Badkamers
1 badkamer
Soort bouw
Bestaande bouw
Eigendomssituatie
Volle eigendom
Ligging
In centrum
Tuin
Patio/atrium

Voorzieningen in de buurt

Boodschappen0,3 km
Grote supermarkt0,6 km
Cafetaria0,3 km
Restaurant0,3 km
Huisarts0,7 km
Ziekenhuis4,5 km
Kinderdagverblijf0,3 km
BSO0,7 km
Alle voorzieningen in Binnenstad-Java

Binnenkijken bij Grenulaan 47 te Terneuzen

Meer meldingen in deze omgeving

112 melding
Donderdag 18-12-2025 om 22:41
Schuttershofweg, 4538AA Terneuzen

112 melding
Woensdag 17-12-2025 om 19:47
Steenkamplaan, Terneuzen

Nieuw bedrijf
December 2025
Noordstraat 36, 4531GH Terneuzen

Binnenkijken bij
Donderdag 11-12-2025
van Steenbergenlaan 3, 4531HJ Terneuzen

Nieuw bedrijf
December 2025
Donze Visserstraat 122, 4531BG Terneuzen

Onroerend goed
Dinsdag 9-12-2025
Nieuwstraat 44, 4531CX Terneuzen

112 melding
Zondag 7-12-2025 om 19:01
Scheldeboulevard, 4531EJ Terneuzen

112 melding
Zaterdag 6-12-2025 om 16:45
Schuttershofweg, 4538AA Terneuzen

Direct een e-mail ontvangen bij nieuwe meldingen in deze regio?

Meld je dan GRATIS aan voor de Oozo Alert service voor Binnenstad-Java

Instellen

Meer nieuws in Binnenstad-Java

Weten hoe eenvoudig het is om af te vallen? Zonder pillen en smeersels en zonder je in het zweet te werken!
Kijk op eenvoudig-afvallen.nl

© 2012 - 2025 OOZO.nl - info@oozo.nl - Gegevens verwijderen? | Disclaimer | Privacy statement