Woning Rembrandtlaan 3 Terneuzen

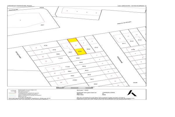
Rembrandtlaan 3, 4532HP Terneuzen

Ontvang updates voor Noordpolder

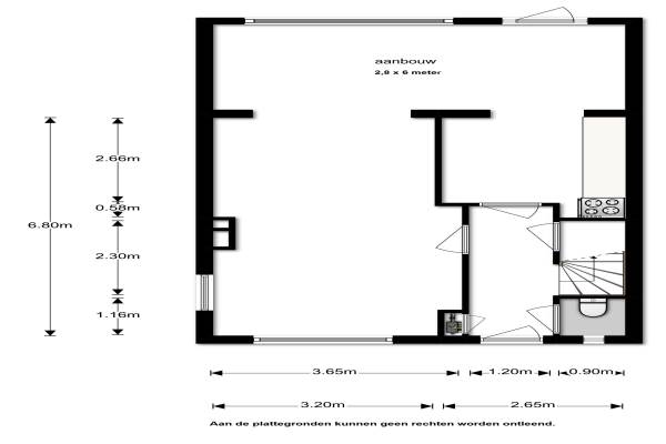
Het adres van deze woning uit 1960 is Rembrandtlaan 3 te Terneuzen. Het pand heeft een oppervlakte van 125m² en een perceeloppervlakte van 151m² en heeft 5 kamers kamers waarvan 3 slaapkamers. De geschatte waarde van deze woning is € 187.500.

Bekijk alle woningen in Noordpolder

Gegevens van Eengezinswoning, tussenwoning

Bouwjaar
1960
Geschatte waarde
€ 187.500
Oppervlakte
125 m2
Inhoud
375 m3
Aantal kamers
5 kamers
Slaapkamers
3
Badkamers
1 badkamer en 2 aparte toiletten
Soort bouw
Bestaande bouw
Eigendomssituatie
Volle eigendom
Tuin
Achtertuin en voortuin
Achtertuin
48 m² (8m diep en 6m breed)

Voorzieningen in de buurt

Boodschappen0,7 km
Grote supermarkt0,7 km
Cafetaria0,7 km
Restaurant0,5 km
Huisarts0,8 km
Ziekenhuis3,9 km
Kinderdagverblijf0,5 km
BSO0,4 km
Alle voorzieningen in Noordpolder

Binnenkijken bij Rembrandtlaan 3 te Terneuzen

Meer meldingen in deze omgeving

Binnenkijken bij
Zondag 16-11-2025
Oranjestraat 62, 4532BV Terneuzen

Binnenkijken bij
Zaterdag 15-11-2025
Koninginnelaan 13, 4532BN Terneuzen

Nieuw bedrijf
November 2025
Pieter de Hooghstraat 2, 4532HK Terneuzen

Binnenkijken bij
Dinsdag 11-11-2025
Stuvesande 166, 4532MJ Terneuzen

Binnenkijken bij
Dinsdag 11-11-2025
Irenestraat 19, 4532BG Terneuzen

Binnenkijken bij
Dinsdag 11-11-2025
Vincent van Goghstraat 30, 4532GR Terneuzen

Binnenkijken bij
Dinsdag 11-11-2025
Churchilllaan 716, 4532JB Terneuzen

Binnenkijken bij
Dinsdag 11-11-2025
Churchilllaan 736, 4532JB Terneuzen

Direct een e-mail ontvangen bij nieuwe meldingen in deze regio?

Meld je dan GRATIS aan voor de Oozo Alert service voor Noordpolder

Instellen

Meer nieuws in Noordpolder

Weten hoe eenvoudig het is om af te vallen? Zonder pillen en smeersels en zonder je in het zweet te werken!
Kijk op eenvoudig-afvallen.nl

© 2012 - 2025 OOZO.nl - info@oozo.nl - Gegevens verwijderen? | Disclaimer | Privacy statement