Woning Lekstraat 10 Terneuzen

Lekstraat 10, 4535EN Terneuzen

Ontvang updates voor Zeldenrust

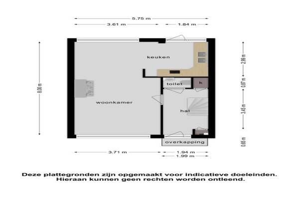
Het adres van deze woning uit 1974 is Lekstraat 10 te Terneuzen. Het pand heeft een oppervlakte van 123m² en een perceeloppervlakte van 145m² en heeft 5 kamers kamers waarvan 4 slaapkamers. De geschatte waarde van deze woning is € 159.000.

Bekijk alle woningen in Zeldenrust

Gegevens van Eengezinswoning

Bouwjaar
1974
Geschatte waarde
€ 159.000
Oppervlakte
123 m2
Inhoud
413 m3
Aantal kamers
5 kamers
Slaapkamers
4
Badkamers
1 badkamer en 1 apart toilet
Soort bouw
Bestaande bouw
Eigendomssituatie
Volle eigendom
Ligging
Aan rustige weg en in woonwijk
Tuin
Balkon aanwezig
Achtertuin
63 m² (11,5 meter diep en 5,5 meter breed)

Voorzieningen in de buurt

Boodschappen0,6 km
Grote supermarkt1,6 km
Cafetaria0,7 km
Restaurant1,5 km
Huisarts1,5 km
Ziekenhuis0,9 km
Kinderdagverblijf0,6 km
BSO0,6 km
Alle voorzieningen in Zeldenrust

Binnenkijken bij Lekstraat 10 te Terneuzen

Meer meldingen in deze omgeving

Binnenkijken bij
Zondag 22-2-2026
Sloelaan 1, 4535ED Terneuzen

Binnenkijken bij
Woensdag 18-2-2026
Merwedelaan 28, 4535ET Terneuzen

112 melding
Maandag 16-2-2026 om 16:23
Roerstraat, 4535GM Terneuzen

112 melding
Zaterdag 14-2-2026 om 17:20
Roerstraat, 4535GM Terneuzen

Binnenkijken bij
Donderdag 12-2-2026
Spaarnestraat 13, 4535GS Terneuzen

Binnenkijken bij
Dinsdag 10-2-2026
Grevelingen 9, 4535JC Terneuzen

Binnenkijken bij
Dinsdag 10-2-2026
Lingestraat 83, 4535ER Terneuzen

Binnenkijken bij
Zaterdag 7-2-2026
Krammer 2, 4535JN Terneuzen

Direct een e-mail ontvangen bij nieuwe meldingen in deze regio?

Meld je dan GRATIS aan voor de Oozo Alert service voor Zeldenrust

Instellen

Meer nieuws in Zeldenrust

Weten hoe eenvoudig het is om af te vallen? Zonder pillen en smeersels en zonder je in het zweet te werken!
Kijk op eenvoudig-afvallen.nl

© 2012 - 2026 OOZO.nl - info@oozo.nl - Gegevens verwijderen? | Disclaimer | Privacy statement