Woning Zaanstraat 3 Terneuzen

Zaanstraat 3, 4535GL Terneuzen

Ontvang updates voor Zeldenrust

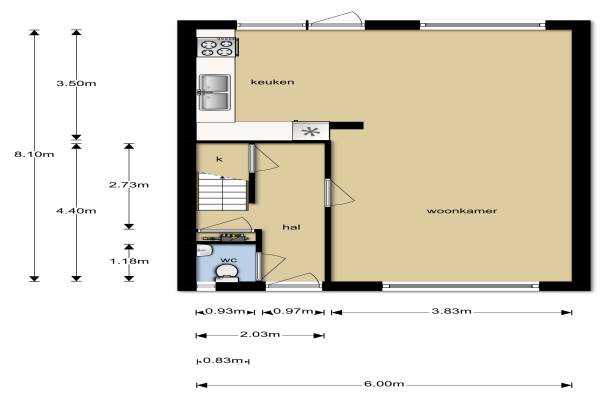
Het adres van deze woning uit 1977 is Zaanstraat 3 te Terneuzen. Het pand heeft een oppervlakte van 122m² en een perceeloppervlakte van 166m² en heeft 5 kamers kamers waarvan 4 slaapkamers. De geschatte waarde van deze woning is € 182.500.

Bekijk alle woningen in Zeldenrust

Gegevens van Eengezinswoning, tussenwoning

Bouwjaar
1977
Geschatte waarde
€ 182.500
Oppervlakte
122 m2
Inhoud
424 m3
Aantal kamers
5 kamers
Slaapkamers
4
Badkamers
1 badkamer en 1 apart toilet
Soort bouw
Bestaande bouw
Eigendomssituatie
Volle eigendom
Ligging
Aan rustige weg en in woonwijk
Tuin
Achtertuin en voortuin
Achtertuin
78 m² (12m diep en 6,5m breed)

Voorzieningen in de buurt

Boodschappen0,6 km
Grote supermarkt1,6 km
Cafetaria0,7 km
Restaurant1,5 km
Huisarts1,5 km
Ziekenhuis0,9 km
Kinderdagverblijf0,6 km
BSO0,6 km
Alle voorzieningen in Zeldenrust

Binnenkijken bij Zaanstraat 3 te Terneuzen

Meer meldingen in deze omgeving

Binnenkijken bij
Woensdag 21-1-2026
Oosterscheldestraat 86, 4535GD Terneuzen

112 melding
Maandag 19-1-2026 om 11:13
Ferlemanstraat, Terneuzen

112 melding
Maandag 19-1-2026 om 11:13
Ferlemanstraat, Terneuzen

Binnenkijken bij
Dinsdag 13-1-2026
Diezestraat 2, 4535EL Terneuzen

Binnenkijken bij
Dinsdag 13-1-2026
Haringvliet 20, 4535JE Terneuzen

Binnenkijken bij
Vrijdag 9-1-2026
Reggestraat 16, 4535GH Terneuzen

Binnenkijken bij
Vrijdag 9-1-2026
Zeldenrustlaan 3, 4535GX Terneuzen

Binnenkijken bij
Woensdag 7-1-2026
Reggestraat 9, 4535GJ Terneuzen

Direct een e-mail ontvangen bij nieuwe meldingen in deze regio?

Meld je dan GRATIS aan voor de Oozo Alert service voor Zeldenrust

Instellen

Meer nieuws in Zeldenrust

Weten hoe eenvoudig het is om af te vallen? Zonder pillen en smeersels en zonder je in het zweet te werken!
Kijk op eenvoudig-afvallen.nl

© 2012 - 2026 OOZO.nl - info@oozo.nl - Gegevens verwijderen? | Disclaimer | Privacy statement