Woning St. Walburgstraat 3 Tiel

St. Walburgstraat 3, 4001MD Tiel

Ontvang updates voor Binnenstad

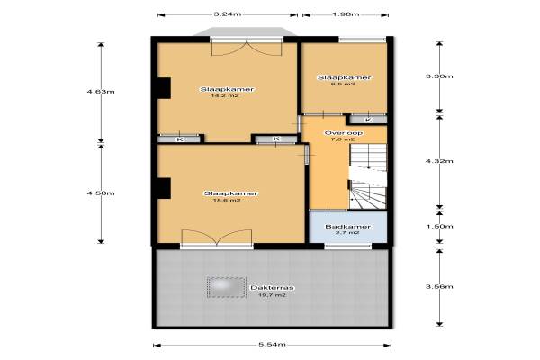
Het adres van deze woning uit 1928 is St. Walburgstraat 3 te Tiel. Het pand heeft een oppervlakte van 163m² en een perceeloppervlakte van 175m² en heeft 7 kamers kamers waarvan 5 slaapkamers. De geschatte waarde van deze woning is € 309.000.

Bekijk alle woningen in Binnenstad

Gegevens van Herenhuis, geschakelde woning

Bouwjaar
1928
Geschatte waarde
€ 309.000
Oppervlakte
163 m2
Inhoud
592 m3
Aantal kamers
7 kamers
Slaapkamers
5
Badkamers
2 badkamers en 1 apart toilet
Soort bouw
Bestaande bouw
Eigendomssituatie
Volle eigendom
Ligging
In centrum
Tuin
Achtertuin
Achtertuin
75 m² (15m diep en 5m breed)

Voorzieningen in de buurt

Boodschappen0,1 km
Grote supermarkt0,3 km
Cafetaria0,1 km
Restaurant0,1 km
Huisarts1,0 km
Ziekenhuis1,9 km
Kinderdagverblijf0,5 km
BSO0,5 km
Alle voorzieningen in Binnenstad

Binnenkijken bij St. Walburgstraat 3 te Tiel

Meer meldingen in deze omgeving

Binnenkijken bij
Zondag 1-2-2026
Oliemolenwal 1904, 4001AV Tiel

Binnenkijken bij
Zondag 1-2-2026
Oliemolenwal 1901, 4001AV Tiel

Binnenkijken bij
Zondag 1-2-2026
Oliemolenwal 1903, 4001AV Tiel

Binnenkijken bij
Zondag 1-2-2026
Oliemolenwal 1902, 4001AV Tiel

Binnenkijken bij
Zondag 1-2-2026
St. Agnietenstraat 15, 4001NB Tiel

Binnenkijken bij
Zondag 1-2-2026
St. Agnietenstraat 19B, 4001NB Tiel

112 melding
Maandag 26-1-2026 om 12:47
Waterstraat, Tiel

112 melding
Maandag 26-1-2026 om 09:14
Waterstraat, Tiel

Direct een e-mail ontvangen bij nieuwe meldingen in deze regio?

Meld je dan GRATIS aan voor de Oozo Alert service voor Binnenstad

Instellen

Meer nieuws in Binnenstad

Weten hoe eenvoudig het is om af te vallen? Zonder pillen en smeersels en zonder je in het zweet te werken!
Kijk op eenvoudig-afvallen.nl

© 2012 - 2026 OOZO.nl - info@oozo.nl - Gegevens verwijderen? | Disclaimer | Privacy statement