Woning Jonge Schutskooilaan 64 Tiel

Jonge Schutskooilaan 64, 4001SC Tiel

Ontvang updates voor Hertogenwijk

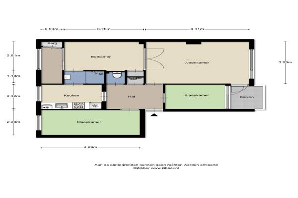
Het adres van deze woning is Jonge Schutskooilaan 64 te Tiel. Het pand heeft een oppervlakte van 66m² en heeft 4 kamers kamers waarvan 2 slaapkamers. De geschatte waarde van deze woning is € 129.500.

Bekijk alle woningen in Hertogenwijk

Gegevens van Eengezinswoning, tussenwoning

Geschatte waarde
€ 129.500
Oppervlakte
66 m2
Inhoud
200 m3
Aantal kamers
4 kamers
Slaapkamers
2
Badkamers
1 badkamer en 1 apart toilet
Soort bouw
Bestaande bouw
Eigendomssituatie
Volle eigendom
Ligging
In woonwijk

Voorzieningen in de buurt

Boodschappen0,4 km
Grote supermarkt0,4 km
Cafetaria0,4 km
Restaurant0,3 km
Huisarts0,3 km
Ziekenhuis2,4 km
Kinderdagverblijf0,3 km
BSO0,3 km
Alle voorzieningen in Hertogenwijk

Binnenkijken bij Jonge Schutskooilaan 64 te Tiel

Meer meldingen in deze omgeving

112 melding
Woensdag 10-12-2025 om 16:01
Hertog Reinaldlaan, Tiel

112 melding
Dinsdag 9-12-2025 om 21:09
Zoelmondstraat, 4006TN Tiel

Nieuw bedrijf
December 2025
Diderik Vijghstraat 8, 4001SL Tiel

Nieuw bedrijf
November 2025
Janus Erasmiusstraat 2, 4001SM Tiel

Nieuw bedrijf
November 2025
Janus Erasmiusstraat 2, 4001SM Tiel

Binnenkijken bij
Dinsdag 11-11-2025
Nieuwe Tielseweg 53, 4001JT Tiel

112 melding
Dinsdag 11-11-2025 om 05:35
Hertog Eduardstraat, 4001RG Tiel

112 melding
Dinsdag 11-11-2025 om 05:21
Hertog Eduardstraat, 4001RG Tiel

Direct een e-mail ontvangen bij nieuwe meldingen in deze regio?

Meld je dan GRATIS aan voor de Oozo Alert service voor Hertogenwijk

Instellen

Meer nieuws in Hertogenwijk

Weten hoe eenvoudig het is om af te vallen? Zonder pillen en smeersels en zonder je in het zweet te werken!
Kijk op eenvoudig-afvallen.nl

© 2012 - 2025 OOZO.nl - info@oozo.nl - Gegevens verwijderen? | Disclaimer | Privacy statement