Woning Den Herd 7 Berkel-Enschot

Den Herd 7, 5056MJ Berkel-Enschot

Ontvang updates voor Berkelse Akkers

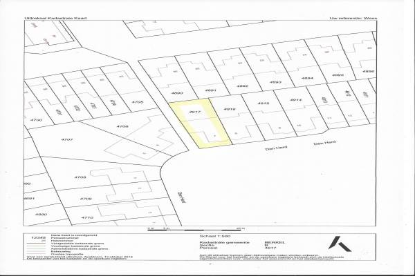
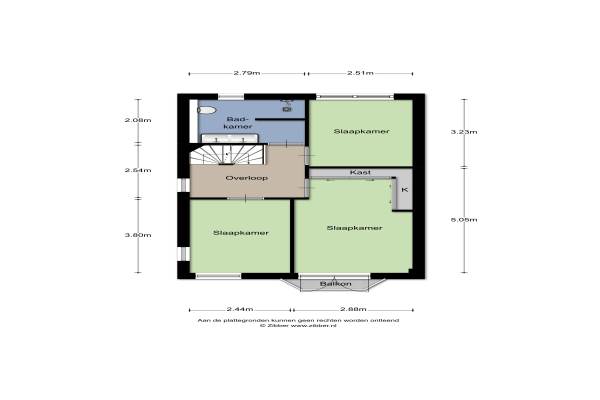
Het adres van deze woning uit 1995 is Den Herd 7 te Berkel-Enschot. Het pand heeft een oppervlakte van 160m² en een perceeloppervlakte van 276m² en heeft 9 kamers kamers waarvan 6 slaapkamers. De geschatte waarde van deze woning is € 375.000.

Bekijk alle woningen in Berkelse Akkers

Gegevens van Eengezinswoning, 2-onder-1-kapwoning

Bouwjaar
1995
Geschatte waarde
€ 375.000
Oppervlakte
160 m2
Inhoud
593 m3
Aantal kamers
9 kamers
Slaapkamers
6
Badkamers
1 badkamer en 1 apart toilet
Soort bouw
Bestaande bouw
Eigendomssituatie
Volle eigendom
Ligging
Aan rustige weg, in woonwijk en vrij uitzicht
Tuin
Achtertuin en voortuin
Achtertuin
100 m² (10m diep en 10m breed)

Voorzieningen in de buurt

Boodschappen1,5 km
Grote supermarkt1,4 km
Cafetaria0,7 km
Restaurant0,7 km
Huisarts1,4 km
Ziekenhuis4,9 km
Kinderdagverblijf0,9 km
BSO0,9 km
Alle voorzieningen in Berkelse Akkers

Binnenkijken bij Den Herd 7 te Berkel-Enschot

Meer meldingen in deze omgeving

112 melding
Zaterdag 14-2-2026 om 15:50
5056PN Berkel-Enschot (Enschot-Oost, Noord-Brabant)

112 melding
Zaterdag 14-2-2026 om 15:50
5056PN Berkel-Enschot (Enschot-Oost, Noord-Brabant)

112 melding
Vrijdag 13-2-2026 om 14:43
De Ploegschaar, 5056MB Berkel-Enschot

112 melding
Vrijdag 13-2-2026 om 08:20
Den Herd, 5056MJ Berkel-Enschot

112 melding
Donderdag 12-2-2026 om 20:11
De Dissel, 5056MK Berkel-Enschot

112 melding
Donderdag 12-2-2026 om 20:11
De Dissel, 5056MK Berkel-Enschot

112 melding
Donderdag 12-2-2026 om 18:45
De Ploegschaar, 5056MC Berkel-Enschot

112 melding
Donderdag 12-2-2026 om 18:45
De Ploegschaar, 5056MC Berkel-Enschot

Direct een e-mail ontvangen bij nieuwe meldingen in deze regio?

Meld je dan GRATIS aan voor de Oozo Alert service voor Berkelse Akkers

Instellen

Meer nieuws in Berkelse Akkers

Weten hoe eenvoudig het is om af te vallen? Zonder pillen en smeersels en zonder je in het zweet te werken!
Kijk op eenvoudig-afvallen.nl

© 2012 - 2026 OOZO.nl - info@oozo.nl - Gegevens verwijderen? | Disclaimer | Privacy statement