Woning Primus van Gilspark 25 Tilburg

Primus van Gilspark 25, 5038XK Tilburg

Ontvang updates voor Koningsplein

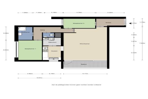
Het adres van deze woning uit 1995 is Primus van Gilspark 25 te Tilburg. Het pand heeft een oppervlakte van 94m² en heeft 3 kamers kamers waarvan 2 slaapkamers. De geschatte waarde van deze woning is € 200.000.

Bekijk alle woningen in Koningsplein

Gegevens van Portiekflat (appartement)

Bouwjaar
1995
Geschatte waarde
€ 200.000
Oppervlakte
94 m2
Inhoud
265 m3
Aantal kamers
3 kamers
Slaapkamers
2
Badkamers
1 badkamer en 1 apart toilet
Soort bouw
Bestaande bouw
Ligging
In centrum, in woonwijk en vrij uitzicht

Voorzieningen in de buurt

Boodschappen0,4 km
Grote supermarkt0,3 km
Cafetaria0,2 km
Restaurant0,2 km
Huisarts0,9 km
Ziekenhuis2,4 km
Kinderdagverblijf0,7 km
BSO0,8 km
Alle voorzieningen in Koningsplein

Binnenkijken bij Primus van Gilspark 25 te Tilburg

Meer meldingen in deze omgeving

112 melding
Vrijdag 19-12-2025 om 07:29
Koningsplein, 5038WG Tilburg

112 melding
Donderdag 18-12-2025 om 13:12
Oude Kerkstraat, 5038VG Tilburg

112 melding
Donderdag 18-12-2025 om 13:12
Anna Paulownahof, 5038VX Tilburg

112 melding
Donderdag 18-12-2025 om 13:12
Anna Paulownahof, 5038VX Tilburg

112 melding
Donderdag 18-12-2025 om 13:12
Koningsplein, 5038WG Tilburg

112 melding
Donderdag 18-12-2025 om 13:12
Anna Paulownahof, 5038VV Tilburg

112 melding
Donderdag 18-12-2025 om 13:12
Koningsplein, 5038WJ Tilburg

112 melding
Donderdag 18-12-2025 om 13:12
Anna Paulownahof, 5038VV Tilburg

Direct een e-mail ontvangen bij nieuwe meldingen in deze regio?

Meld je dan GRATIS aan voor de Oozo Alert service voor Koningsplein

Instellen

Meer nieuws in Koningsplein

Weten hoe eenvoudig het is om af te vallen? Zonder pillen en smeersels en zonder je in het zweet te werken!
Kijk op eenvoudig-afvallen.nl

© 2012 - 2025 OOZO.nl - info@oozo.nl - Gegevens verwijderen? | Disclaimer | Privacy statement