Woning Sommelsdijkhof 9 Tilburg

Sommelsdijkhof 9, 5035JG Tilburg

Ontvang updates voor Dalem Zuid I

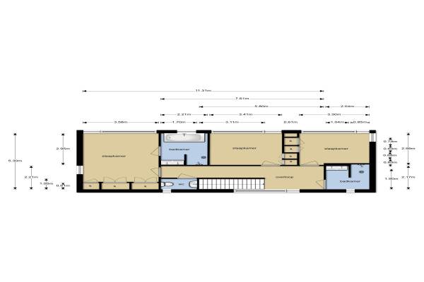
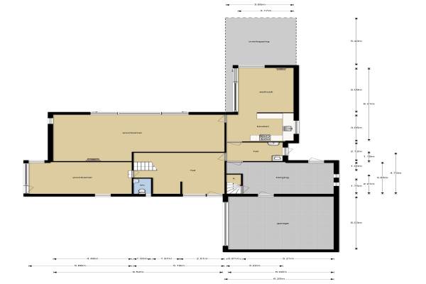
Het adres van deze woning uit 2000 is Sommelsdijkhof 9 te Tilburg. Het pand heeft een oppervlakte van 191m² en een perceeloppervlakte van 933m² en heeft 7 kamers kamers waarvan 4 slaapkamers. De geschatte waarde van deze woning is € 849.000.

Bekijk alle woningen in Dalem Zuid I

Gegevens van Villa, vrijstaande woning

Bouwjaar
2000
Geschatte waarde
€ 849.000
Oppervlakte
191 m2
Inhoud
967 m3
Aantal kamers
7 kamers
Slaapkamers
4
Badkamers
1 badkamer en 2 aparte toiletten
Soort bouw
Bestaande bouw
Eigendomssituatie
Volle eigendom
Ligging
Aan rustige weg, in woonwijk en beschutte ligging
Tuin
Tuin rondom

Voorzieningen in de buurt

Boodschappen0,4 km
Grote supermarkt0,4 km
Cafetaria0,5 km
Restaurant1,7 km
Huisarts0,4 km
Ziekenhuis6,9 km
Kinderdagverblijf1,0 km
BSO1,0 km
Alle voorzieningen in Dalem Zuid I

Binnenkijken bij Sommelsdijkhof 9 te Tilburg

Meer meldingen in deze omgeving

Nieuw bedrijf
December 2025
Sommelsdijkhof 3, 5035JG Tilburg

112 melding
Maandag 1-12-2025 om 13:02
Spaarnwoudelaan, 5035HN Tilburg

112 melding
Maandag 1-12-2025 om 09:48
Spaarnwoudelaan, 5035HN Tilburg

112 melding
Vrijdag 28-11-2025 om 16:12
Schipluidenlaan, 5035KE Tilburg

112 melding
Vrijdag 28-11-2025 om 16:12
Schipluidenlaan, 5035KE Tilburg

112 melding
Vrijdag 28-11-2025 om 14:25
Dalempromenade, 5035KL Tilburg

112 melding
Woensdag 26-11-2025 om 16:01
Scheerwoldehof, 5035JJ Tilburg

112 melding
Woensdag 26-11-2025 om 09:49
Sommelsdijkhof, 5035JG Tilburg

Direct een e-mail ontvangen bij nieuwe meldingen in deze regio?

Meld je dan GRATIS aan voor de Oozo Alert service voor Dalem Zuid I

Instellen

Meer nieuws in Dalem Zuid I

Weten hoe eenvoudig het is om af te vallen? Zonder pillen en smeersels en zonder je in het zweet te werken!
Kijk op eenvoudig-afvallen.nl

© 2012 - 2025 OOZO.nl - info@oozo.nl - Gegevens verwijderen? | Disclaimer | Privacy statement