Woning Schipluidenlaan 91 Tilburg

Schipluidenlaan 91, 5035KD Tilburg

Ontvang updates voor Dalem Zuid I

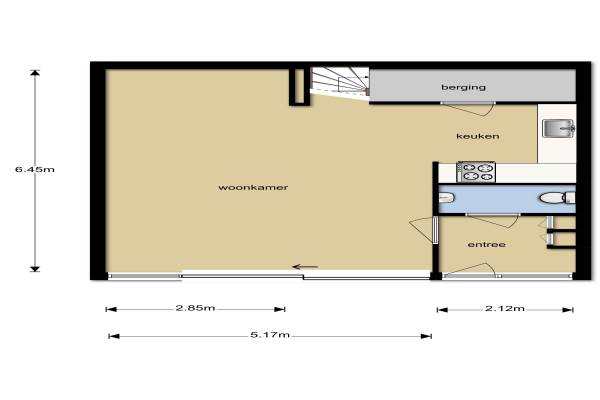
Het adres van deze woning uit 2000 is Schipluidenlaan 91 te Tilburg. Het pand heeft een oppervlakte van 94m² en een perceeloppervlakte van 186m² en heeft 4 kamers kamers waarvan 3 slaapkamers. De geschatte waarde van deze woning is € 389.500.

Bekijk alle woningen in Dalem Zuid I

Gegevens van Eengezinswoning, tussenwoning

Bouwjaar
2000
Geschatte waarde
€ 389.500
Oppervlakte
94 m2
Inhoud
334 m3
Aantal kamers
4 kamers
Slaapkamers
3
Badkamers
1 badkamer en 1 apart toilet
Soort bouw
Bestaande bouw
Eigendomssituatie
Volle eigendom
Ligging
Aan rustige weg, beschutte ligging en in woonwijk
Tuin
Voortuin

Voorzieningen in de buurt

Boodschappen0,4 km
Grote supermarkt0,4 km
Cafetaria0,5 km
Restaurant1,7 km
Huisarts0,4 km
Ziekenhuis6,9 km
Kinderdagverblijf1,0 km
BSO1,0 km
Alle voorzieningen in Dalem Zuid I

Binnenkijken bij Schipluidenlaan 91 te Tilburg

Meer meldingen in deze omgeving

112 melding
Vrijdag 20-3-2026 om 11:21
Schipluidenlaan, 5035KG Tilburg

112 melding
Woensdag 18-3-2026 om 16:01
Schipluidenlaan, 5035KH Tilburg

112 melding
Woensdag 18-3-2026 om 09:02
Sommelsdijkhof, 5035JG Tilburg

112 melding
Dinsdag 17-3-2026 om 11:33
Schipluidenlaan, 5035KH Tilburg

112 melding
Dinsdag 17-3-2026 om 11:33
Schipluidenlaan, 5035KH Tilburg

112 melding
Maandag 16-3-2026 om 14:30
Santpoortplein, Tilburg

112 melding
Maandag 16-3-2026 om 07:02
Santpoortplein, 5035HE Tilburg

112 melding
Zondag 15-3-2026 om 16:32
Sommelsdijkhof, 5035JG Tilburg

Direct een e-mail ontvangen bij nieuwe meldingen in deze regio?

Meld je dan GRATIS aan voor de Oozo Alert service voor Dalem Zuid I

Instellen

Meer nieuws in Dalem Zuid I

Weten hoe eenvoudig het is om af te vallen? Zonder pillen en smeersels en zonder je in het zweet te werken!
Kijk op eenvoudig-afvallen.nl

© 2012 - 2026 OOZO.nl - info@oozo.nl - Gegevens verwijderen? | Disclaimer | Privacy statement