Woning Essche Stroom 4 Tilburg

Essche Stroom 4, 5032BG Tilburg

Ontvang updates voor De Blaak Zuid-West

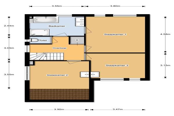
Het adres van deze woning uit 1979 is Essche Stroom 4 te Tilburg. Het pand heeft een oppervlakte van 165m² en een perceeloppervlakte van 327m² en heeft 5 kamers kamers waarvan 4 slaapkamers. De geschatte waarde van deze woning is € 445.000.

Bekijk alle woningen in De Blaak Zuid-West

Gegevens van Eengezinswoning, 2-onder-1-kapwoning

Bouwjaar
1979
Geschatte waarde
€ 445.000
Oppervlakte
165 m2
Inhoud
556 m3
Aantal kamers
5 kamers
Slaapkamers
4
Badkamers
1 badkamer en 2 aparte toiletten
Soort bouw
Bestaande bouw
Eigendomssituatie
Volle eigendom
Ligging
Aan rustige weg en in woonwijk
Tuin
Achtertuin en voortuin
Achtertuin
131 m² (14,8m diep en 10,75m breed)

Voorzieningen in de buurt

Boodschappen0,8 km
Grote supermarkt0,9 km
Cafetaria0,8 km
Restaurant0,8 km
Huisarts0,9 km
Ziekenhuis4,8 km
Kinderdagverblijf0,7 km
BSO0,7 km
Alle voorzieningen in De Blaak Zuid-West

Binnenkijken bij Essche Stroom 4 te Tilburg

Meer meldingen in deze omgeving

112 melding
Dinsdag 20-1-2026 om 10:19
Weteringlaan, 5032XS Tilburg

112 melding
Dinsdag 20-1-2026 om 09:02
Roerpad, 5032AR Tilburg

112 melding
Dinsdag 20-1-2026 om 08:43
Biezenloop, 5032CC Tilburg

112 melding
Dinsdag 20-1-2026 om 07:48
Oude Maasje, 5032WH Tilburg

112 melding
Maandag 19-1-2026 om 15:33
Weteringlaan, 5032XS Tilburg

112 melding
Maandag 19-1-2026 om 15:33
Weteringlaan, 5032XS Tilburg

112 melding
Maandag 19-1-2026 om 14:53
Weteringlaan, 5032XW Tilburg

112 melding
Maandag 19-1-2026 om 14:53
Weteringlaan, 5032XW Tilburg

Direct een e-mail ontvangen bij nieuwe meldingen in deze regio?

Meld je dan GRATIS aan voor de Oozo Alert service voor De Blaak Zuid-West

Instellen

Meer nieuws in De Blaak Zuid-West

Weten hoe eenvoudig het is om af te vallen? Zonder pillen en smeersels en zonder je in het zweet te werken!
Kijk op eenvoudig-afvallen.nl

© 2012 - 2026 OOZO.nl - info@oozo.nl - Gegevens verwijderen? | Disclaimer | Privacy statement