Woning Kasteel Montfoortstraat 37 Tilburg

Kasteel Montfoortstraat 37, 5037TD Tilburg

Ontvang updates voor Kastelenbuurt Noord

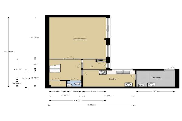
Het adres van deze woning uit 1975 is Kasteel Montfoortstraat 37 te Tilburg. Het pand heeft een oppervlakte van 123m² en een perceeloppervlakte van 150m² en heeft 5 kamers kamers waarvan 4 slaapkamers. De geschatte waarde van deze woning is € 215.000.

Bekijk alle woningen in Kastelenbuurt Noord

Gegevens van Eengezinswoning, tussenwoning

Bouwjaar
1975
Geschatte waarde
€ 215.000
Oppervlakte
123 m2
Inhoud
440 m3
Aantal kamers
5 kamers
Slaapkamers
4
Badkamers
1 badkamer en 1 apart toilet
Soort bouw
Bestaande bouw
Ligging
Aan rustige weg, in woonwijk en beschutte ligging
Tuin
Voortuin

Voorzieningen in de buurt

Boodschappen1,0 km
Grote supermarkt0,5 km
Cafetaria0,5 km
Restaurant0,6 km
Huisarts0,4 km
Ziekenhuis2,6 km
Kinderdagverblijf0,4 km
BSO0,6 km
Alle voorzieningen in Kastelenbuurt Noord

Binnenkijken bij Kasteel Montfoortstraat 37 te Tilburg

Meer meldingen in deze omgeving

112 melding
Donderdag 18-12-2025 om 13:08
Prof. Cobbenhagenlaan, 5037DE Tilburg

112 melding
Donderdag 18-12-2025 om 09:40
Kasteel Twikkelstraat, 5037HS Tilburg

112 melding
Woensdag 17-12-2025 om 11:14
Prof. Cobbenhagenlaan, 5037DE Tilburg

112 melding
Woensdag 17-12-2025 om 11:14
Prof. Cobbenhagenlaan, 5037DE Tilburg

112 melding
Woensdag 17-12-2025 om 10:51
Kasteel Lichtenbergstraat, 5037HC Tilburg

112 melding
Dinsdag 16-12-2025 om 09:39
Kasteel Nijenrodestraat, 5037TM Tilburg

112 melding
Dinsdag 16-12-2025 om 09:38
Kasteel Twikkelstraat, 5037HS Tilburg

112 melding
Dinsdag 16-12-2025 om 08:02
Kasteel Cannestraat, 5037TC Tilburg

Direct een e-mail ontvangen bij nieuwe meldingen in deze regio?

Meld je dan GRATIS aan voor de Oozo Alert service voor Kastelenbuurt Noord

Instellen

Meer nieuws in Kastelenbuurt Noord

Weten hoe eenvoudig het is om af te vallen? Zonder pillen en smeersels en zonder je in het zweet te werken!
Kijk op eenvoudig-afvallen.nl

© 2012 - 2025 OOZO.nl - info@oozo.nl - Gegevens verwijderen? | Disclaimer | Privacy statement