Woning Professor Cobbenhagenlaan 494 Tilburg

Professor Cobbenhagenlaan 494, 5037DK Tilburg

Ontvang updates voor Kastelenbuurt Noord

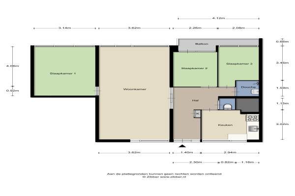
Het adres van deze woning uit 1967 is Professor Cobbenhagenlaan 494 te Tilburg. Het pand heeft een oppervlakte van 91m² en heeft 4 kamers kamers waarvan 3 slaapkamers. De geschatte waarde van deze woning is € 172.500.

Bekijk alle woningen in Kastelenbuurt Noord

Gegevens van Galerijflat (appartement)

Bouwjaar
1967
Geschatte waarde
€ 172.500
Oppervlakte
91 m2
Inhoud
290 m3
Aantal kamers
4 kamers
Slaapkamers
3
Badkamers
1 badkamer en 1 apart toilet
Soort bouw
Bestaande bouw
Eigendomssituatie
Volle eigendom
Ligging
In woonwijk en vrij uitzicht

Voorzieningen in de buurt

Boodschappen1,0 km
Grote supermarkt0,5 km
Cafetaria0,5 km
Restaurant0,6 km
Huisarts0,4 km
Ziekenhuis2,6 km
Kinderdagverblijf0,4 km
BSO0,6 km
Alle voorzieningen in Kastelenbuurt Noord

Binnenkijken bij Professor Cobbenhagenlaan 494 te Tilburg

Meer meldingen in deze omgeving

112 melding
Vrijdag 6-2-2026 om 10:42
Kasteel Nemerlaerstraat, 5037VA Tilburg

Binnenkijken bij
Donderdag 5-2-2026
Professor Gimbrèrelaan 205, 5037EJ Tilburg

112 melding
Woensdag 4-2-2026 om 08:49
Kasteel Heeswijkstraat, 5037HM Tilburg

112 melding
Dinsdag 3-2-2026 om 10:20
Kasteel Heeswijkstraat, 5037HM Tilburg

Binnenkijken bij
Dinsdag 3-2-2026
Professor Cobbenhagenlaan 264, 5037DE Tilburg

112 melding
Maandag 2-2-2026 om 08:05
Kasteel Nijenrodestraat, 5037TM Tilburg

112 melding
Maandag 2-2-2026 om 07:02
Professor Gimbrèrelaan, 5037EH Tilburg

Binnenkijken bij
Zondag 1-2-2026
Professor Cobbenhagenlaan 306, 5037DG Tilburg

Direct een e-mail ontvangen bij nieuwe meldingen in deze regio?

Meld je dan GRATIS aan voor de Oozo Alert service voor Kastelenbuurt Noord

Instellen

Meer nieuws in Kastelenbuurt Noord

Weten hoe eenvoudig het is om af te vallen? Zonder pillen en smeersels en zonder je in het zweet te werken!
Kijk op eenvoudig-afvallen.nl

© 2012 - 2026 OOZO.nl - info@oozo.nl - Gegevens verwijderen? | Disclaimer | Privacy statement