Woning Etnastraat 19 Tilburg

Etnastraat 19, 5022PC Tilburg

Ontvang updates voor Ezelvense Akkers

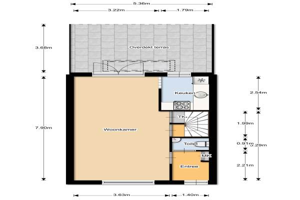
Het adres van deze woning uit 1995 is Etnastraat 19 te Tilburg. Het pand heeft een oppervlakte van 102m² en een perceeloppervlakte van 161m² en heeft 6 kamers kamers waarvan 5 slaapkamers. De geschatte waarde van deze woning is € 224.000.

Bekijk alle woningen in Ezelvense Akkers

Gegevens van Eengezinswoning, tussenwoning

Bouwjaar
1995
Geschatte waarde
€ 224.000
Oppervlakte
102 m2
Inhoud
341 m3
Aantal kamers
6 kamers
Slaapkamers
5
Badkamers
1 badkamer en 1 apart toilet
Soort bouw
Bestaande bouw
Eigendomssituatie
Volle eigendom
Ligging
Aan rustige weg en in woonwijk
Tuin
Achtertuin
Achtertuin
96 m² (16m diep en 6m breed)

Voorzieningen in de buurt

Boodschappen0,7 km
Grote supermarkt0,6 km
Cafetaria0,5 km
Restaurant0,5 km
Huisarts0,7 km
Ziekenhuis1,5 km
Kinderdagverblijf0,6 km
BSO0,7 km
Alle voorzieningen in Ezelvense Akkers

Binnenkijken bij Etnastraat 19 te Tilburg

Meer meldingen in deze omgeving

112 melding
Vrijdag 2-1-2026 om 05:56
Tatraweg, 5022DR Tilburg

112 melding
Vrijdag 2-1-2026 om 05:51
Tatraweg, 5022DS Tilburg

112 melding
Woensdag 31-12-2025 om 15:04
Ringbaan-Zuid, 5022GA Tilburg

112 melding
Woensdag 31-12-2025 om 14:10
Tatraweg, 5022DS Tilburg

112 melding
Woensdag 31-12-2025 om 13:34
Tatraweg, 5022DR Tilburg

112 melding
Dinsdag 30-12-2025 om 11:07
Ringbaan-Zuid, 5022GA Tilburg

112 melding
Maandag 29-12-2025 om 21:06
Ringbaan-Zuid, 5022GA Tilburg

112 melding
Zaterdag 27-12-2025 om 22:20
Ringbaan-Zuid, 5022PR Tilburg

Direct een e-mail ontvangen bij nieuwe meldingen in deze regio?

Meld je dan GRATIS aan voor de Oozo Alert service voor Ezelvense Akkers

Instellen

Meer nieuws in Ezelvense Akkers

Weten hoe eenvoudig het is om af te vallen? Zonder pillen en smeersels en zonder je in het zweet te werken!
Kijk op eenvoudig-afvallen.nl

© 2012 - 2026 OOZO.nl - info@oozo.nl - Gegevens verwijderen? | Disclaimer | Privacy statement