Woning Arendlaan 8 Tilburg

Arendlaan 8, 5022AV Tilburg

Ontvang updates voor Vogeltjesbuurt Oost

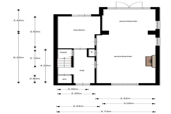
Het adres van deze woning uit 1951 is Arendlaan 8 te Tilburg. Het pand heeft een oppervlakte van 113m² en een perceeloppervlakte van 202m² en heeft 5 kamers kamers waarvan 3 slaapkamers. De geschatte waarde van deze woning is € 215.000.

Bekijk alle woningen in Vogeltjesbuurt Oost

Gegevens van Eengezinswoning, eindwoning

Bouwjaar
1951
Geschatte waarde
€ 215.000
Oppervlakte
113 m2
Inhoud
425 m3
Aantal kamers
5 kamers
Slaapkamers
3
Badkamers
1 badkamer en 1 apart toilet
Soort bouw
Bestaande bouw
Eigendomssituatie
Volle eigendom
Ligging
Aan rustige weg en in woonwijk
Tuin
Achtertuin, voortuin en zijtuin
Achtertuin
56 m² (8m diep en 7m breed)

Voorzieningen in de buurt

Boodschappen0,4 km
Grote supermarkt0,7 km
Cafetaria0,5 km
Restaurant0,5 km
Huisarts0,5 km
Ziekenhuis0,9 km
Kinderdagverblijf0,3 km
BSO0,7 km
Alle voorzieningen in Vogeltjesbuurt Oost

Binnenkijken bij Arendlaan 8 te Tilburg

Meer meldingen in deze omgeving

112 melding
Vrijdag 3-10-2025 om 20:07
Duifstraat, 5022AZ Tilburg

112 melding
Donderdag 2-10-2025 om 12:08
Leijparkweg, 5022AC Tilburg

112 melding
Woensdag 1-10-2025 om 19:21
Leijparkweg, 5022AA Tilburg

112 melding
Dinsdag 30-9-2025 om 12:19
Leijparkweg, 5022AC Tilburg

112 melding
Dinsdag 30-9-2025 om 12:19
Leijparkweg, 5022AC Tilburg

112 melding
Dinsdag 30-9-2025 om 11:48
Leijparkweg, 5022AA Tilburg

Binnenkijken bij
Dinsdag 30-9-2025
Duifstraat 13, 5022AL Tilburg

112 melding
Zaterdag 27-9-2025 om 10:01
Leijparkweg, 5022AA Tilburg

Direct een e-mail ontvangen bij nieuwe meldingen in deze regio?

Meld je dan GRATIS aan voor de Oozo Alert service voor Vogeltjesbuurt Oost

Instellen

Meer nieuws in Vogeltjesbuurt Oost

Weten hoe eenvoudig het is om af te vallen? Zonder pillen en smeersels en zonder je in het zweet te werken!
Kijk op eenvoudig-afvallen.nl

© 2012 - 2025 OOZO.nl - info@oozo.nl - Gegevens verwijderen? | Disclaimer | Privacy statement