Woning Groeseindstraat 29-04 Tilburg

Groeseindstraat 29--04, 5014LT Tilburg

Ontvang updates voor Sint Pieterspark

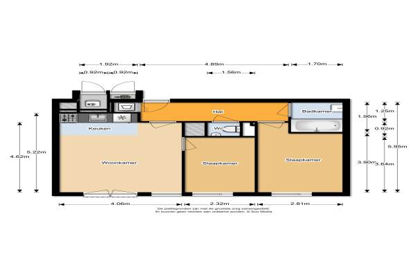
Het adres van deze woning uit 2007 is Groeseindstraat 29-04 te Tilburg. Het pand heeft een oppervlakte van 56m² en heeft 3 kamers kamers waarvan 2 slaapkamers. De geschatte waarde van deze woning is € 125.000.

Bekijk alle woningen in Sint Pieterspark

Gegevens van Portiekflat (appartement)

Bouwjaar
2007
Geschatte waarde
€ 125.000
Oppervlakte
56 m2
Inhoud
190 m3
Aantal kamers
3 kamers
Slaapkamers
2
Badkamers
1 badkamer en 1 apart toilet
Soort bouw
Bestaande bouw
Eigendomssituatie
Volle eigendom
Ligging
In woonwijk

Voorzieningen in de buurt

Boodschappen0,3 km
Grote supermarkt0,4 km
Cafetaria0,2 km
Restaurant0,5 km
Huisarts0,5 km
Ziekenhuis2,2 km
Kinderdagverblijf0,5 km
BSO0,9 km
Alle voorzieningen in Sint Pieterspark

Binnenkijken bij Groeseindstraat 29-04 te Tilburg

Meer meldingen in deze omgeving

112 melding
Zondag 30-11-2025 om 09:42
Bart van Peltplein, 5046GA Tilburg

112 melding
Zaterdag 29-11-2025 om 11:18
Sint Pieterspark, 5014SL Tilburg

112 melding
Vrijdag 28-11-2025 om 22:14
Sint Pieterspark, 5014SL Tilburg

112 melding
Vrijdag 28-11-2025 om 10:34
Bisschop Godschalkstraat, 5014PR Tilburg

112 melding
Vrijdag 28-11-2025 om 09:11
Bisschop Godschalkstraat, 5014PR Tilburg

112 melding
Vrijdag 28-11-2025 om 09:09
Bisschop Janssensstraat, 5014PK Tilburg

112 melding
Vrijdag 28-11-2025 om 07:49
Bart van Peltplein, 5046GA Tilburg

Nieuw bedrijf
November 2025
Sint Nicolaasstraat 14, 5014RS Tilburg

Direct een e-mail ontvangen bij nieuwe meldingen in deze regio?

Meld je dan GRATIS aan voor de Oozo Alert service voor Sint Pieterspark

Instellen

Meer nieuws in Sint Pieterspark

Weten hoe eenvoudig het is om af te vallen? Zonder pillen en smeersels en zonder je in het zweet te werken!
Kijk op eenvoudig-afvallen.nl

© 2012 - 2025 OOZO.nl - info@oozo.nl - Gegevens verwijderen? | Disclaimer | Privacy statement