Woning Sint Pieterspark 37 Tilburg

Sint Pieterspark 37, 5014SK Tilburg

Ontvang updates voor Sint Pieterspark

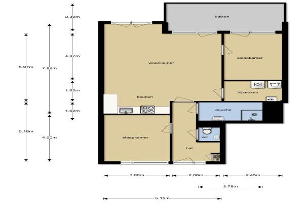
Het adres van deze woning uit 2015 is Sint Pieterspark 37 te Tilburg. Het pand heeft een oppervlakte van 77m² en heeft 3 kamers kamers waarvan 2 slaapkamers.

Bekijk alle woningen in Sint Pieterspark

Gegevens van Galerijflat (appartement)

Bouwjaar
2015
Geschatte waarde
€ 0
Oppervlakte
77 m2
Inhoud
260 m3
Aantal kamers
3 kamers
Slaapkamers
2
Badkamers
1 badkamer en 1 apart toilet
Soort bouw
Bestaande bouw
Eigendomssituatie
Volle eigendom
Ligging
Aan park, aan rustige weg, in woonwijk en vrij uitzicht

Voorzieningen in de buurt

Boodschappen0,3 km
Grote supermarkt0,4 km
Cafetaria0,2 km
Restaurant0,5 km
Huisarts0,5 km
Ziekenhuis2,2 km
Kinderdagverblijf0,5 km
BSO0,9 km
Alle voorzieningen in Sint Pieterspark

Binnenkijken bij Sint Pieterspark 37 te Tilburg

Meer meldingen in deze omgeving

112 melding
Donderdag 25-12-2025 om 20:34
Sint Andreasstraat, 5014RX Tilburg

112 melding
Woensdag 24-12-2025 om 15:52
Bart van Peltplein, 5046GA Tilburg

112 melding
Woensdag 24-12-2025 om 15:49
Pater Ruttenstraat, 5046DW Tilburg

Nieuw bedrijf
December 2025
Groeseindstraat 3303, 5014LT Tilburg

112 melding
Woensdag 24-12-2025 om 11:48
Pater Ruttenstraat, 5046DW Tilburg

112 melding
Woensdag 24-12-2025 om 09:41
Bisschop Godschalkstraat, 5014PS Tilburg

112 melding
Dinsdag 23-12-2025 om 11:03
Bart van Peltplein, 5046GA Tilburg

112 melding
Dinsdag 23-12-2025 om 07:27
Sint Pieterspark, 5014SJ Tilburg

Direct een e-mail ontvangen bij nieuwe meldingen in deze regio?

Meld je dan GRATIS aan voor de Oozo Alert service voor Sint Pieterspark

Instellen

Meer nieuws in Sint Pieterspark

Weten hoe eenvoudig het is om af te vallen? Zonder pillen en smeersels en zonder je in het zweet te werken!
Kijk op eenvoudig-afvallen.nl

© 2012 - 2025 OOZO.nl - info@oozo.nl - Gegevens verwijderen? | Disclaimer | Privacy statement