Woning Künnekestraat 21-04 Tilburg

Künnekestraat 21--04, 5011EL Tilburg

Ontvang updates voor Heikant Oost

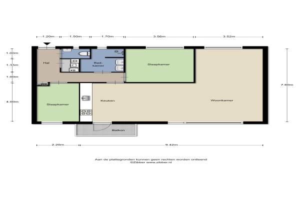
Het adres van deze woning uit 1979 is Künnekestraat 21-04 te Tilburg. Het pand heeft een oppervlakte van 90m² en heeft 3 kamers kamers waarvan 2 slaapkamers. De geschatte waarde van deze woning is € 159.000.

Bekijk alle woningen in Heikant Oost

Gegevens van Portiekflat (appartement)

Bouwjaar
1979
Geschatte waarde
€ 159.000
Oppervlakte
90 m2
Inhoud
216 m3
Aantal kamers
3 kamers
Slaapkamers
2
Badkamers
1 apart toilet
Soort bouw
Bestaande bouw
Eigendomssituatie
Volle eigendom
Ligging
In woonwijk

Voorzieningen in de buurt

Boodschappen0,4 km
Grote supermarkt0,5 km
Cafetaria0,2 km
Restaurant0,3 km
Huisarts0,8 km
Ziekenhuis2,9 km
Kinderdagverblijf0,3 km
BSO0,3 km
Alle voorzieningen in Heikant Oost

Binnenkijken bij Künnekestraat 21-04 te Tilburg

Meer meldingen in deze omgeving

112 melding
Zaterdag 22-11-2025 om 15:43
Benatzkystraat, 5011ED Tilburg

112 melding
Zaterdag 22-11-2025 om 15:12
Benatzkystraat, Tilburg

112 melding
Vrijdag 21-11-2025 om 19:15
Distlerstraat, 5011EW Tilburg

112 melding
Vrijdag 21-11-2025 om 16:24
Eilenbergstraat, 5011EB Tilburg

Nieuw bedrijf
November 2025
Beethovenlaan 65, 5011LD Tilburg

112 melding
Donderdag 20-11-2025 om 15:47
Distlerstraat, 5011EW Tilburg

112 melding
Donderdag 20-11-2025 om 14:43
Benatzkystraat, Tilburg

112 melding
Donderdag 20-11-2025 om 11:24
Von Suppéstraat, 5011EE Tilburg

Direct een e-mail ontvangen bij nieuwe meldingen in deze regio?

Meld je dan GRATIS aan voor de Oozo Alert service voor Heikant Oost

Instellen

Meer nieuws in Heikant Oost

Weten hoe eenvoudig het is om af te vallen? Zonder pillen en smeersels en zonder je in het zweet te werken!
Kijk op eenvoudig-afvallen.nl

© 2012 - 2025 OOZO.nl - info@oozo.nl - Gegevens verwijderen? | Disclaimer | Privacy statement