Woning Haydnstraat 371 Tilburg

Haydnstraat 371, 5011NJ Tilburg

Ontvang updates voor Heikant Zuid-West

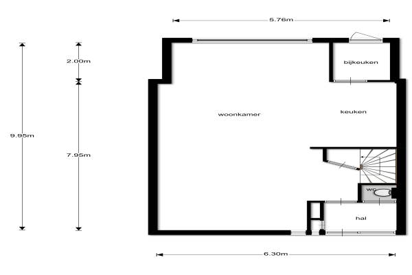
Het adres van deze woning uit 1968 is Haydnstraat 371 te Tilburg. Het pand heeft een oppervlakte van 130m² en een perceeloppervlakte van 142m² en heeft 5 kamers kamers waarvan 4 slaapkamers. De geschatte waarde van deze woning is € 200.000.

Bekijk alle woningen in Heikant Zuid-West

Gegevens van Eengezinswoning, tussenwoning

Bouwjaar
1968
Geschatte waarde
€ 200.000
Oppervlakte
130 m2
Inhoud
419 m3
Aantal kamers
5 kamers
Slaapkamers
4
Badkamers
1 badkamer en 1 apart toilet
Soort bouw
Bestaande bouw
Eigendomssituatie
Volle eigendom
Ligging
In woonwijk, vrij uitzicht en open ligging
Tuin
Achtertuin en voortuin
Achtertuin
60 m² (10m diep en 6m breed)

Voorzieningen in de buurt

Boodschappen0,5 km
Grote supermarkt0,5 km
Cafetaria0,5 km
Restaurant0,6 km
Huisarts0,3 km
Ziekenhuis2,1 km
Kinderdagverblijf0,7 km
BSO0,5 km
Alle voorzieningen in Heikant Zuid-West

Binnenkijken bij Haydnstraat 371 te Tilburg

Meer meldingen in deze omgeving

112 melding
Zondag 21-12-2025 om 14:09
Mendelssohnstraat, 5011PD Tilburg

112 melding
Zondag 21-12-2025 om 13:22
Mendelssohnstraat, 5011PD Tilburg

112 melding
Zondag 21-12-2025 om 13:17
Mendelssohnstraat, 5011PD Tilburg

112 melding
Zaterdag 20-12-2025 om 10:11
Franz Lisztstraat, 5011RC Tilburg

112 melding
Vrijdag 19-12-2025 om 07:40
Franz Lisztstraat, 5011RB Tilburg

112 melding
Donderdag 18-12-2025 om 11:47
Haydnstraat, 5011NN Tilburg

112 melding
Donderdag 18-12-2025 om 09:14
Haydnstraat, 5011NN Tilburg

112 melding
Donderdag 18-12-2025 om 09:06
Franz Lisztstraat, 5011 Tilburg

Direct een e-mail ontvangen bij nieuwe meldingen in deze regio?

Meld je dan GRATIS aan voor de Oozo Alert service voor Heikant Zuid-West

Instellen

Meer nieuws in Heikant Zuid-West

Weten hoe eenvoudig het is om af te vallen? Zonder pillen en smeersels en zonder je in het zweet te werken!
Kijk op eenvoudig-afvallen.nl

© 2012 - 2025 OOZO.nl - info@oozo.nl - Gegevens verwijderen? | Disclaimer | Privacy statement