Woning Deken Botsstraat 4 Tilburg

Deken Botsstraat 4, 5046KB Tilburg

Ontvang updates voor Pastorieklamp Oost

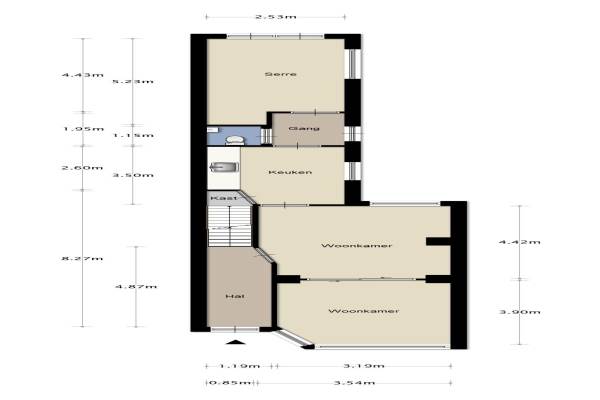
Het adres van deze woning uit 1931 is Deken Botsstraat 4 te Tilburg. Het pand heeft een oppervlakte van 136m² en een perceeloppervlakte van 182m² en heeft 6 kamers kamers waarvan 4 slaapkamers. De geschatte waarde van deze woning is € 225.000.

Bekijk alle woningen in Pastorieklamp Oost

Gegevens van Eengezinswoning, tussenwoning

Bouwjaar
1931
Geschatte waarde
€ 225.000
Oppervlakte
136 m2
Inhoud
466 m3
Aantal kamers
6 kamers
Slaapkamers
4
Badkamers
1 badkamer en 2 aparte toiletten
Soort bouw
Bestaande bouw
Eigendomssituatie
Volle eigendom
Ligging
Aan rustige weg en in woonwijk
Tuin
Achtertuin en voortuin
Achtertuin
70 m² (14m diep en 4,99m breed)

Voorzieningen in de buurt

Boodschappen0,3 km
Grote supermarkt0,4 km
Cafetaria0,1 km
Restaurant0,4 km
Huisarts0,5 km
Ziekenhuis2,2 km
Kinderdagverblijf0,6 km
BSO0,7 km
Alle voorzieningen in Pastorieklamp Oost

Binnenkijken bij Deken Botsstraat 4 te Tilburg

Meer meldingen in deze omgeving

112 melding
Zaterdag 4-4-2026 om 17:15
Groeseindstraat, 5046XA Tilburg

112 melding
Donderdag 2-4-2026 om 20:21
Vigiliusstraat, 5046KD Tilburg

112 melding
Donderdag 2-4-2026 om 20:19
Vigiliusstraat, 5046KE Tilburg

112 melding
Donderdag 2-4-2026 om 17:01
Houtstraat, 5046DH Tilburg

112 melding
Woensdag 1-4-2026 om 16:10
Kardinaal de Jongplein, 5046DE Tilburg

112 melding
Woensdag 1-4-2026 om 14:20
Kardinaal de Jongplein, 5046DE Tilburg

112 melding
Woensdag 1-4-2026 om 12:43
Kardinaal de Jongplein, 5046DE Tilburg

112 melding
Woensdag 1-4-2026 om 12:43
Kardinaal de Jongplein, 5046DE Tilburg

Direct een e-mail ontvangen bij nieuwe meldingen in deze regio?

Meld je dan GRATIS aan voor de Oozo Alert service voor Pastorieklamp Oost

Instellen

Meer nieuws in Pastorieklamp Oost

Weten hoe eenvoudig het is om af te vallen? Zonder pillen en smeersels en zonder je in het zweet te werken!
Kijk op eenvoudig-afvallen.nl

© 2012 - 2026 OOZO.nl - info@oozo.nl - Gegevens verwijderen? | Disclaimer | Privacy statement