Woning De Regenboogstraat 39 Tilburg

De Regenboogstraat 39, 5038NP Tilburg

Ontvang updates voor Bomenbuurt West

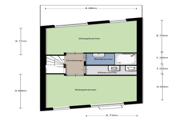
Het adres van deze woning uit 2000 is De Regenboogstraat 39 te Tilburg. Het pand heeft een oppervlakte van 150m² en een perceeloppervlakte van 114m² en heeft 5 kamers kamers waarvan 4 slaapkamers. De geschatte waarde van deze woning is € 325.000.

Bekijk alle woningen in Bomenbuurt West

Gegevens van Eengezinswoning, tussenwoning

Bouwjaar
2000
Geschatte waarde
€ 325.000
Oppervlakte
150 m2
Inhoud
452 m3
Aantal kamers
5 kamers
Slaapkamers
4
Badkamers
2 badkamers en 1 apart toilet
Soort bouw
Bestaande bouw
Eigendomssituatie
Volle eigendom
Ligging
In centrum en in woonwijk
Tuin
Achtertuin en zonneterras
Achtertuin
32 m² (9m diep en 5m breed)

Voorzieningen in de buurt

Boodschappen0,4 km
Grote supermarkt0,9 km
Cafetaria0,3 km
Restaurant0,2 km
Huisarts0,7 km
Ziekenhuis2,4 km
Kinderdagverblijf0,4 km
BSO0,4 km
Alle voorzieningen in Bomenbuurt West

Binnenkijken bij De Regenboogstraat 39 te Tilburg

Meer meldingen in deze omgeving

112 melding
Vrijdag 5-12-2025 om 11:09
Cypresstraat, 5038KS Tilburg

112 melding
Dinsdag 2-12-2025 om 16:04
Magnoliaerf, 5038KP Tilburg

112 melding
Dinsdag 2-12-2025 om 16:04
Magnoliaerf, 5038KP Tilburg

112 melding
Dinsdag 2-12-2025 om 08:53
Boksdoornerf, 5038KD Tilburg

112 melding
Dinsdag 2-12-2025 om 08:43
Iepenstraat, 5038KN Tilburg

112 melding
Dinsdag 2-12-2025 om 08:21
De Regenboogstraat, 5038NP Tilburg

112 melding
Dinsdag 2-12-2025 om 08:18
De Regenboogstraat, 5038NP Tilburg

112 melding
Dinsdag 2-12-2025 om 08:17
De Regenboogstraat, 5038NP Tilburg

Direct een e-mail ontvangen bij nieuwe meldingen in deze regio?

Meld je dan GRATIS aan voor de Oozo Alert service voor Bomenbuurt West

Instellen

Meer nieuws in Bomenbuurt West

Weten hoe eenvoudig het is om af te vallen? Zonder pillen en smeersels en zonder je in het zweet te werken!
Kijk op eenvoudig-afvallen.nl

© 2012 - 2025 OOZO.nl - info@oozo.nl - Gegevens verwijderen? | Disclaimer | Privacy statement