Woning Debussylaan 37 Tilburg

Debussylaan 37, 5049AB Tilburg

Ontvang updates voor Stokhasselt Zuid

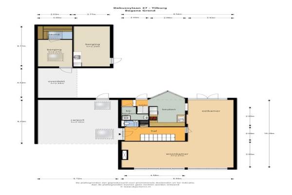
Het adres van deze woning uit 1977 is Debussylaan 37 te Tilburg. Het pand heeft een oppervlakte van 177m² en een perceeloppervlakte van 451m² en heeft 5 kamers kamers waarvan 4 slaapkamers. De geschatte waarde van deze woning is € 450.000.

Bekijk alle woningen in Stokhasselt Zuid

Gegevens van Eengezinswoning, 2-onder-1-kapwoning

Bouwjaar
1977
Geschatte waarde
€ 450.000
Oppervlakte
177 m2
Inhoud
598 m3
Aantal kamers
5 kamers
Slaapkamers
4
Badkamers
2 badkamers en 1 apart toilet
Soort bouw
Bestaande bouw
Eigendomssituatie
Volle eigendom
Ligging
Aan rustige weg en in woonwijk
Tuin
Achtertuin, voortuin en zijtuin
Achtertuin
140 m² (10m diep en 14m breed)

Voorzieningen in de buurt

Boodschappen0,8 km
Grote supermarkt1,3 km
Cafetaria1,3 km
Restaurant1,3 km
Huisarts1,0 km
Ziekenhuis1,2 km
Kinderdagverblijf1,0 km
BSO1,3 km
Alle voorzieningen in Stokhasselt Zuid

Binnenkijken bij Debussylaan 37 te Tilburg

Meer meldingen in deze omgeving

112 melding
Woensdag 11-3-2026 om 14:57
Goirkekanaaldijk, 5049BT Tilburg

112 melding
Woensdag 11-3-2026 om 14:57
Goirkekanaaldijk, 5049BT Tilburg

112 melding
Woensdag 11-3-2026 om 10:03
Heikantlaan, 5049AN Tilburg

112 melding
Dinsdag 10-3-2026 om 08:28
Heikantlaan, 5049AN Tilburg

112 melding
Maandag 9-3-2026 om 13:25
Bizetplantsoen, 5049AH Tilburg

112 melding
Maandag 9-3-2026 om 07:09
Bizetplantsoen, 5049AH Tilburg

112 melding
Maandag 9-3-2026 om 02:31
Bizetplantsoen, 5049AH Tilburg

112 melding
Maandag 9-3-2026 om 02:31
Bizetplantsoen, 5049AH Tilburg

Direct een e-mail ontvangen bij nieuwe meldingen in deze regio?

Meld je dan GRATIS aan voor de Oozo Alert service voor Stokhasselt Zuid

Instellen

Meer nieuws in Stokhasselt Zuid

Weten hoe eenvoudig het is om af te vallen? Zonder pillen en smeersels en zonder je in het zweet te werken!
Kijk op eenvoudig-afvallen.nl

© 2012 - 2026 OOZO.nl - info@oozo.nl - Gegevens verwijderen? | Disclaimer | Privacy statement