Woning Megenstraat 59 Tilburg

Megenstraat 59, 5045KE Tilburg

Ontvang updates voor De Kievit Noord-West

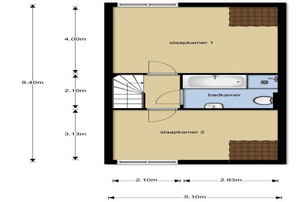
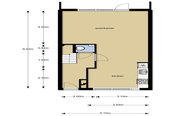
Het adres van deze woning uit 1996 is Megenstraat 59 te Tilburg. Het pand heeft een oppervlakte van 102m² en een perceeloppervlakte van 149m² en heeft 4 kamers kamers waarvan 3 slaapkamers. De geschatte waarde van deze woning is € 219.500.

Bekijk alle woningen in De Kievit Noord-West

Gegevens van Eengezinswoning, tussenwoning

Bouwjaar
1996
Geschatte waarde
€ 219.500
Oppervlakte
102 m2
Inhoud
389 m3
Aantal kamers
4 kamers
Slaapkamers
3
Badkamers
1 badkamer en 1 apart toilet
Soort bouw
Bestaande bouw
Eigendomssituatie
Volle eigendom
Ligging
Aan rustige weg, in woonwijk en vrij uitzicht
Tuin
Achtertuin en voortuin
Achtertuin
65 m² (12m diep en 5,4m breed)

Voorzieningen in de buurt

Boodschappen1,3 km
Grote supermarkt1,3 km
Cafetaria1,3 km
Restaurant0,8 km
Huisarts0,9 km
Ziekenhuis5,8 km
Kinderdagverblijf0,6 km
BSO0,5 km
Alle voorzieningen in De Kievit Noord-West

Binnenkijken bij Megenstraat 59 te Tilburg

Meer meldingen in deze omgeving

112 melding
Vrijdag 9-1-2026 om 13:27
Megenstraat, 5045KE Tilburg

112 melding
Donderdag 8-1-2026 om 15:33
Meerwijkstraat, 5045KG Tilburg

112 melding
Donderdag 8-1-2026 om 14:16
Bijsterveldenlaan, 5045ZW Tilburg

112 melding
Donderdag 8-1-2026 om 11:58
Bijsterveldenlaan, 5045ZW Tilburg

112 melding
Donderdag 8-1-2026 om 11:48
Megenstraat, 5045KE Tilburg

112 melding
Donderdag 8-1-2026 om 09:06
Bijsterveldenlaan, 5045ZW Tilburg

112 melding
Donderdag 8-1-2026 om 09:00
Meerwijkstraat, 5045KG Tilburg

112 melding
Donderdag 8-1-2026 om 07:02
Langendijk, 5045AV Tilburg

Direct een e-mail ontvangen bij nieuwe meldingen in deze regio?

Meld je dan GRATIS aan voor de Oozo Alert service voor De Kievit Noord-West

Instellen

Meer nieuws in De Kievit Noord-West

Weten hoe eenvoudig het is om af te vallen? Zonder pillen en smeersels en zonder je in het zweet te werken!
Kijk op eenvoudig-afvallen.nl

© 2012 - 2026 OOZO.nl - info@oozo.nl - Gegevens verwijderen? | Disclaimer | Privacy statement