Woning Hinvertsweg 16 Albergen

Hinvertsweg 16, 7665AX Albergen

Ontvang updates voor Albergen kern

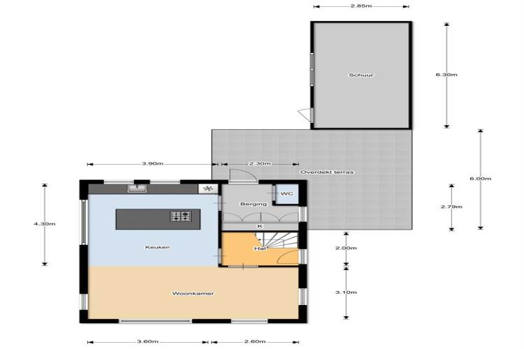
Het adres van deze woning uit 1961 is Hinvertsweg 16 te Albergen. Het pand heeft een oppervlakte van 102m² en een perceeloppervlakte van 388m² en heeft 4 kamers kamers waarvan 3 slaapkamers. De geschatte waarde van deze woning is € 289.000.

Bekijk alle woningen in Albergen kern

Gegevens van Eengezinswoning, vrijstaande woning

Bouwjaar
1961
Geschatte waarde
€ 289.000
Oppervlakte
102 m2
Inhoud
385 m3
Aantal kamers
4 kamers
Slaapkamers
3
Badkamers
1 badkamer en 2 aparte toiletten
Soort bouw
Bestaande bouw
Eigendomssituatie
Volle eigendom
Ligging
Aan rustige weg en in woonwijk
Tuin
Achtertuin, voortuin, zijtuin en zonneterras
Achtertuin
110 m² (12,4m diep en 8,9m breed)

Voorzieningen in de buurt

Boodschappen0,5 km
Grote supermarkt0,6 km
Cafetaria4,8 km
Restaurant0,6 km
Huisarts0,7 km
Ziekenhuis7,3 km
Kinderdagverblijf0,4 km
BSO0,4 km
Alle voorzieningen in Albergen kern

Binnenkijken bij Hinvertsweg 16 te Albergen

Meer meldingen in deze omgeving

112 melding
Donderdag 27-11-2025 om 12:17
Hoofdstraat, Albergen

Binnenkijken bij
Woensdag 29-10-2025
Kapittelhuisstraat 31, 7665BC Albergen

112 melding
Zaterdag 4-10-2025 om 09:59
Van Koersveldweg, 7665SG Albergen

112 melding
Zaterdag 4-10-2025 om 09:59
Van Koersveldweg, 7665SG Albergen

Binnenkijken bij
Donderdag 25-9-2025
Hinvertsweg 18, 7665AX Albergen

Nieuw bedrijf
September 2025
Zandhuisweg 37c, 7665SH Albergen

Nieuw bedrijf
September 2025
Zandhuisweg 37c, 7665SH Albergen

Nieuw bedrijf
September 2025
Zandhuisweg 37c, 7665SH Albergen

Direct een e-mail ontvangen bij nieuwe meldingen in deze regio?

Meld je dan GRATIS aan voor de Oozo Alert service voor Albergen kern

Instellen

Meer nieuws in Albergen kern

Weten hoe eenvoudig het is om af te vallen? Zonder pillen en smeersels en zonder je in het zweet te werken!
Kijk op eenvoudig-afvallen.nl

© 2012 - 2025 OOZO.nl - info@oozo.nl - Gegevens verwijderen? | Disclaimer | Privacy statement